2433 Stern Deck Rd, Bradley, CA 93426

USD 475000 For Sale
MLS: NS25266181

Property Details

Bathrooms

2

Description

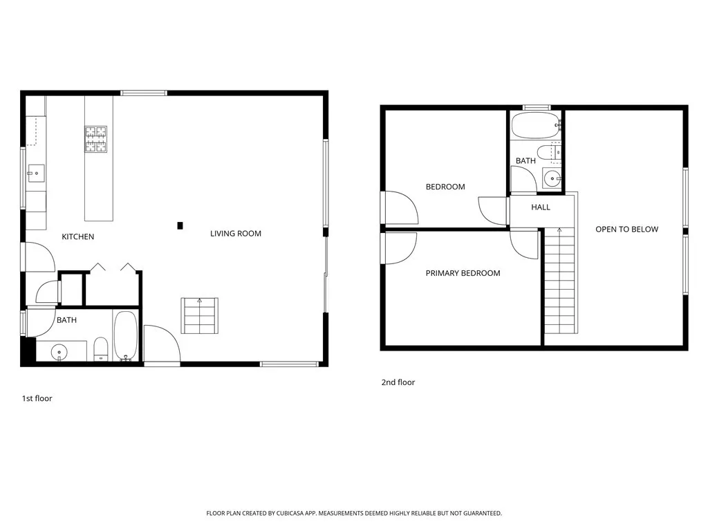
Tucked inside the gated community of Oak Shores, this inviting two-story home blends lake-area charm with everyday convenience. Off-street parking and a 29' deep garage, complete with washer, dryer, and on-demand water heater, set the tone for a property designed with practicality in mind. A wraparound deck welcomes you with peaceful views of Lake Nacimiento, offering the perfect spot for morning coffee or evening sunsets. Inside, the main level features an open layout wrapped in warm knotty pine and updated with new vinyl flooring. The kitchen is thoughtfully arranged with a long breakfast bar, dishwasher, propane range, and a door leading directly to the rear deck for easy indoor-outdoor entertaining. A generous pantry, utility closet, and a full bathroom add valuable functionality on the main floor. Upstairs, two bedrooms and a full bathroom create a relaxing retreat. Step out onto the private rear balcony to soak in sweeping mountain views, a serene backdrop to start or end your day. Owning in Oak Shores means enjoying resort-style amenities year-round: pickleball courts, hiking trails, a mini golf course, playground, two boat launch ramps, a marina with over 60 courtesy slips, a heated swimming pool, clubhouse, and even a campground. This property offers the best of lake living and community convenience in one beautiful package.

PROPERTY DETAILS: Square Feet: 1200 | Bathrooms: 2

INTERIOR FEATURES: • Appliances: Range, Dryer, Washer, Dishwasher, Microwave, Refrigerator • Flooring: Vinyl • Cooling: Central Air • Heating: Central • Common Walls: No Common Walls • Doors/Windows: Sliding Doors • Fireplaces: None • Security: Gated Community • Additional Interior Features: Breakfast Bar, Cathedral Ceiling(s), Open Floorplan, Pantry

EXTERIOR FEATURES: • Parking: 2 Garage Spaces, 5 Parking Spaces, Driveway, Concrete, Garage, Attached Garage. • Patio: Patio, Deck • Roof: Composition • Pool Description: Association • Spa: None • Lot View: Lake, Mountain, Other • Fence: None • Additional Exterior/Lot Features: Rain Gutters, Balcony, Patio, Deck Cul-De-Sac

LISTING AGENT: Agent: Jasmine Duncan | Office: Oak Shores Realty | Phone: 8312066443 | Email: [email protected]

LISTING INFORMATION: MLS#: NS25266181 | Status: FOR SALE

Location

Address

2433 Stern Deck Rd

City

Bradley

Features and Finishes

Interior Features:

• Appliances: Range, Dryer, Washer, Dishwasher, Microwave, Refrigerator

• Flooring: Vinyl

• Cooling: Central Air

• Heating: Central

• Common Walls: No Common Walls

• Doors/Windows: Sliding Doors

• Fireplaces: None

• Security: Gated Community

• Additional Interior Features: Breakfast Bar, Cathedral Ceiling(s), Open Floorplan, Pantry

Exterior Features:

• Parking: 2 Garage Spaces, 5 Parking Spaces, Driveway, Concrete, Garage, Attached Garage.

• Patio: Patio, Deck

• Roof: Composition

• Pool Description: Association

• Spa: None

• Lot View: Lake, Mountain, Other

• Fence: None

• Additional Exterior/Lot Features: Rain Gutters, Balcony, Patio, Deck Cul-De-Sac

Legal Notice

Our comprehensive database is populated by our meticulous research and analysis of public data. MirrorRealEstate strives for accuracy and we make every effort to verify the information. However, MirrorRealEstate is not liable for the use or misuse of the site's information. The information displayed on MirrorRealEstate.com is for reference only.

Real Estate Broker
Jasmine Duncan
Brokerage
Oak Shores Realty
Likes

0

Views

19

This website uses cookies to ensure you get the best experience. Learn more