1417 San Luis Avenue, Los Osos, CA 93402

USD 1050000 For Sale
MLS: SC25278731

Property Details

Bathrooms

2

Description

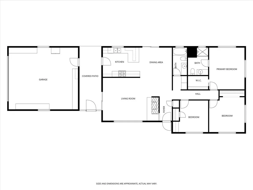
1978 California Ranch-Style Home on Over Half an Acre, 1417 San Luis Avenue, Los Osos, CA 93402 Designed for comfortable, informal living, this single-story ranch-style home sits on a half-acre-plus lot and features vaulted wood ceilings in the living and dining rooms. The open flow between the living room, dining area, and kitchen creates a bright, spacious feel, anchored by a wood-burning fireplace and large picture windows capturing views of Hollister Peak. The dining room's sliding glass door opens to a generous concrete patio with a built-in wood-burning barbecue pit - ideal for entertaining and gatherings. Multiple access points to patios, the breezeway, and backyard enhance the home's easy indoor-outdoor lifestyle. The attached two-car garage connects through a covered breezeway, offering convenient, weather-protected access on rainy days. Inside, a wide hallway leads to a guest bathroom and two guest bedrooms, with the primary bedroom located across the hall, featuring a walk-in closet and a private bathroom. With ample space for an ADU, workshop, or FFA/4-H projects, this property offers flexibility and room to grow. Call your Realtor today to schedule a private showing.

PROPERTY DETAILS: Square Feet: 1404 | Bathrooms: 2

INTERIOR FEATURES: • Appliances: Dishwasher, Disposal, Gas Range, Vented Exhaust Fan, Water Heater • Flooring: Laminate • Cooling: None • Heating: Gas Heat, Central, Fireplace • Common Walls: No Common Walls • Doors/Windows: Sliding Doors, Double Pane Windows, Shutters • Fireplaces: Living Room • Additional Interior Features: Walk-In Closet(s), Breakfast Bar, High Ceilings, Storage, Tile Counters

EXTERIOR FEATURES: • Parking: 2 Garage Spaces, 2 Parking Spaces, Circular Driveway, Garage, Garage Faces Side, Garage Door Opener, Guest, On Site, RV Access/Parking, Attached Garage. • Patio: Porch, Patio, Front Porch • Roof: Composition • Pool Description: None • Spa: None • Lot View: Hill, Mountain, Panoramic, Other • Fence: Block, Brick, Wire, Wood • Additional Exterior/Lot Features: Shed(s), RV Access/Parking, Front Porch, Patio, Porch Sloped, Back Yard, Front Yard, Gentle Sloping, Irregular Lot

LISTING AGENT: Agent: Shirley Hulin | Office: Century 21 Masters | Phone: 8052354877 | Email: [email protected]

LISTING INFORMATION: MLS#: SC25278731 | Status: FOR SALE

Location

Address

1417 San Luis Avenue

City

Los Osos

Features and Finishes

Interior Features:

• Appliances: Dishwasher, Disposal, Gas Range, Vented Exhaust Fan, Water Heater

• Flooring: Laminate

• Cooling: None

• Heating: Gas Heat, Central, Fireplace

• Common Walls: No Common Walls

• Doors/Windows: Sliding Doors, Double Pane Windows, Shutters

• Fireplaces: Living Room

• Additional Interior Features: Walk-In Closet(s), Breakfast Bar, High Ceilings, Storage, Tile Counters

Exterior Features:

• Parking: 2 Garage Spaces, 2 Parking Spaces, Circular Driveway, Garage, Garage Faces Side, Garage Door Opener, Guest, On Site, RV Access/Parking, Attached Garage.

• Patio: Porch, Patio, Front Porch

• Roof: Composition

• Pool Description: None

• Spa: None

• Lot View: Hill, Mountain, Panoramic, Other

• Fence: Block, Brick, Wire, Wood

• Additional Exterior/Lot Features: Shed(s), RV Access/Parking, Front Porch, Patio, Porch Sloped, Back Yard, Front Yard, Gentle Sloping, Irregular Lot

Legal Notice

Our comprehensive database is populated by our meticulous research and analysis of public data. MirrorRealEstate strives for accuracy and we make every effort to verify the information. However, MirrorRealEstate is not liable for the use or misuse of the site's information. The information displayed on MirrorRealEstate.com is for reference only.

Real Estate Broker
Shirley Hulin
Brokerage
Century 21 Masters
Likes

0

Views

2

This website uses cookies to ensure you get the best experience. Learn more