6C Golf Links Road, Hepburn VIC 3461
Property Details
Vacant Land
Description
Property Details: • Type: Vacant Land
• Bedrooms: 0 • Bathrooms: 0
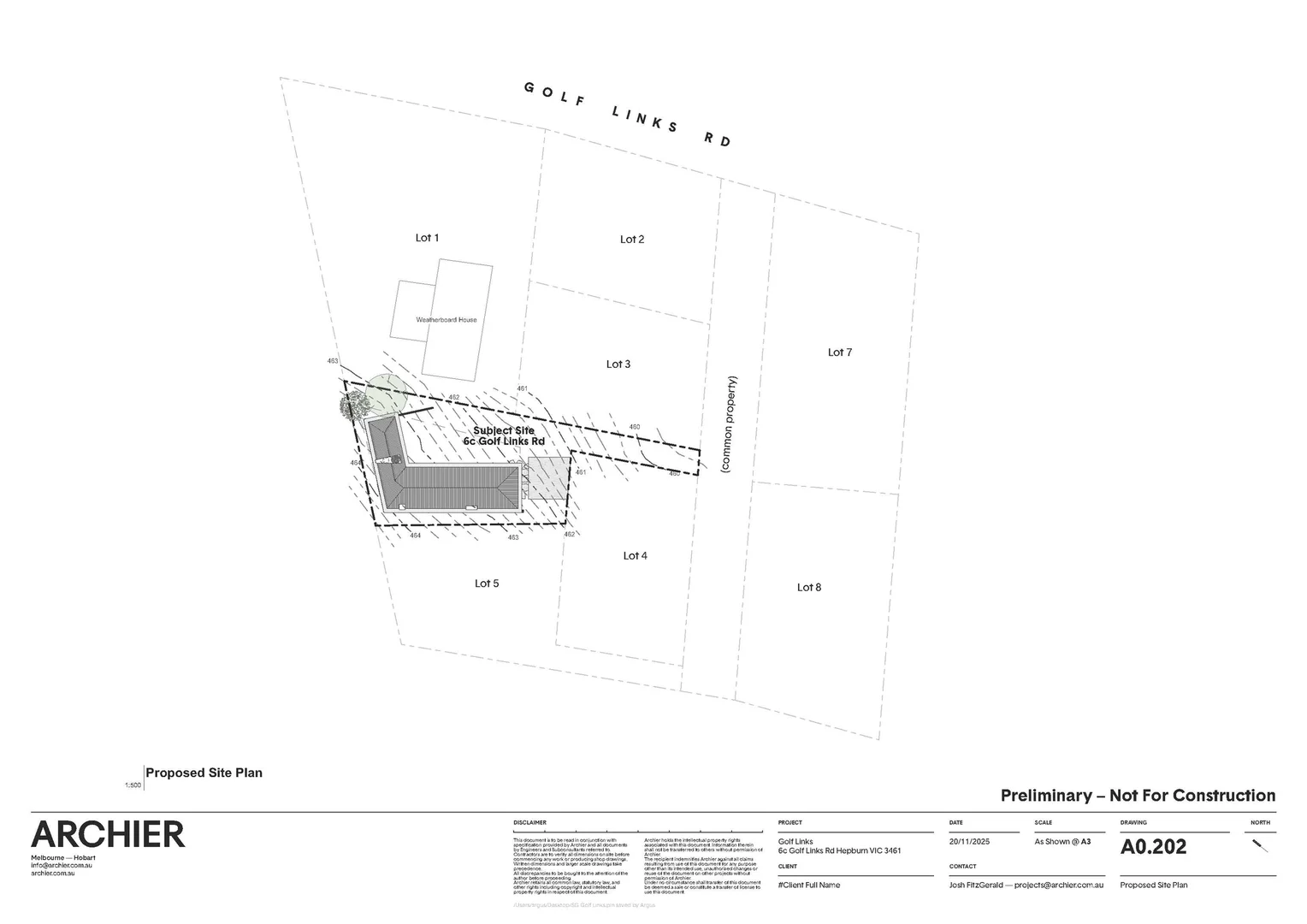
Description: Set in a quiet and established part of Hepburn, this spacious 737m² (approx.) allotment at 6C Golf Links Road presents an excellent chance to build your ideal home or getaway retreat (STCA). The block is cleared, gently sloping, fully fenced and fully serviced making it ready for your vision to come to life. Included in the sale are architectural concept drawings by Archier, providing a premium design foundation and inspiration for your build. Enjoy easy access to all the charm Hepburn and Hepburn Springs have to offer, including the iconic Bathhouse & Spa, local mineral springs, vibrant cafés, restaurants, the golf course, and nearby schools. Daylesford is just a short drive away for additional shops and services. Whether you're planning a permanent move, a weekend escape, or a smart investment, this property offers the perfect foundation.
Location
Address
6C Golf Links Road, Hepburn VIC 3461
City
Hepburn
Features and Finishes
None
Legal Notice
Our comprehensive database is populated by our meticulous research and analysis of public data. MirrorRealEstate strives for accuracy and we make every effort to verify the information. However, MirrorRealEstate is not liable for the use or misuse of the site's information. The information displayed on MirrorRealEstate.com is for reference only.