7 Drummond Street, Bedford WA 6052
Property Details
4
2
House
Description
Property Details: • Type: House
• Bedrooms: 4 • Bathrooms: 2
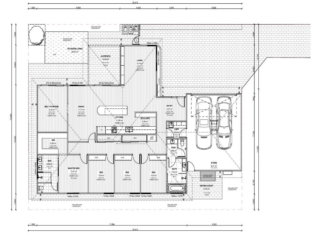
Description: Ready to start building in MAY, 7 Drummond Street delivers the perfect blend of quality craftsmanship, contemporary finishes and a thoughtfully planned, family-friendly layout, all just moments from Beaufort Street and the vibrant Inglewood café strip. Step inside to an inviting entry where 33c ceilings instantly elevate the sense of space. The home is smartly zoned with living to one side and the bedroom wing to the other, ensuring comfort, privacy and effortless everyday flow. A shopper's entry from the garage adds convenience from the moment you arrive. The open-plan kitchen, dining and living area forms the heart of the home. Finished with stone benchtops, soft-close cabinetry, tiled splashback and quality Haier appliances including induction cooktop, electric oven and rangehood, the kitchen is both refined and highly functional. Overlooking the dining and living zones, it connects seamlessly to the covered, paved alfresco making entertaining easy. The backyard offers a generous space for kids and pets to enjoy, bringing added appeal for families seeking room without the high maintenance. Privately positioned at the rear is the master suite, complete with his-and-hers built-in robes and an ensuite featuring a double vanity, shower and toilet. Down the hallway are three additional well-sized bedrooms, all with built-in robes. They share a modern family bathroom with bath, shower, vanity and separate toilet. A theatre room in this zone provides a valuable second living space, while a powder room and a laundry with direct outdoor access ensure day-to-day convenience. Impressively designed and impeccably finished, this brand-new home offers premium low-maintenance living in one of Bedford's most desirable pockets, steps from cafés, shops, parks and everything the local lifestyle is known for. Reach out today for full plans, specifications and completion details for this exciting new build. Key Features SUMMIT PROJECTS quality built and specified - Four bedrooms, two bathrooms plus powder room - a family home for entertaining! Soaring 2.7m high ceilings throughout Stone benchtops, Laminex/soft-close cabinetry Westinghouse appliances: induction cooktop, electric oven and rangehood Covered, paved alfresco overlooking a family-friendly backyard Theatre room offering a valuable second living space Master suite with his-and-hers robes and double-vanity ensuite Built-in robes and carpets to all bedrooms Double garage with shopper's entry Laundry with overheads and hanging rail Proximity Beaufort Park 70m Civic Hotel 700m Coles Inglewood 1km Hillcrest Park 1.7km Embleton Golf Course 1.9km Maylands Train Station 2km Coventry Village 3.8km Perth CBD 5.8km Perth Airport 9.1km School Catchment Hillcrest Primary School 1.6km John Forrest Secondary College 1.8km The seller reserves the right to accept an offer prior to the closing date without notice. Disclaimer: This information is provided for general information purposes and reference only. It is based on information provided by the Seller and may be subject to change and/or further enquiry. No warranty or representation is made as to its accuracy and interested parties should make their own independent enquiries.
Location
Address
7 Drummond Street, Bedford WA 6052
City
Bedford
Features and Finishes
None
Legal Notice
Our comprehensive database is populated by our meticulous research and analysis of public data. MirrorRealEstate strives for accuracy and we make every effort to verify the information. However, MirrorRealEstate is not liable for the use or misuse of the site's information. The information displayed on MirrorRealEstate.com is for reference only.