7 Kooringal Avenue, Griffith NSW 2680
Property Details
Vacant Land
Description
Property Details: • Type: Vacant Land
• Bedrooms: 0 • Bathrooms: 0
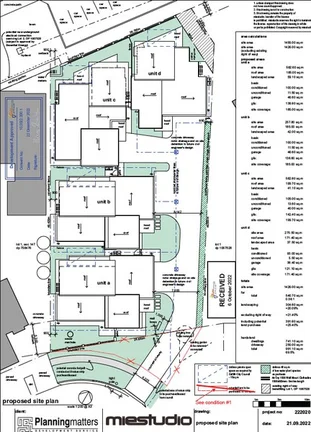
Description: Presenting a rare and lucrative development opportunity in Griffith CBD/Hospital Prescient. This expansive 1400* square meter site has development approval for 4 units, featuring three bedrooms, 2 bathrooms, and a double garage. (information available on request) ( A DA approval of 8 double-storey units has been approved previously, but has now lapsed. This design would be great for the increasing demand for boutique low-maintenance housing, suitable for professionals, doctors, nurses and medical staff, which will increase with the soon-to-be-completed Griffith base Hospital. Key Highlights: + Rare de-risked DA-approved boutique unit allotment + 1,400 sqm Total Approved + Regular-shaped level lot for ease of construction + Sought after CBD location offering a North-facing aspect. + 700m* walk to Griffith City Centre + Strong demand from local down-sizers and professionals + 8 separate water meters installed Disclaimer: The particulars above have been supplied to us by the Vendors for whom we act as agents, we as agents have not verified the content to be true or false, therefore, intending Purchasers should satisfy themselves as to the correctness of these details. * Approx. + GST IF APPLICABLE
Location
Address
7 Kooringal Avenue, Griffith NSW 2680
City
Griffith
Features and Finishes
None
Legal Notice
Our comprehensive database is populated by our meticulous research and analysis of public data. MirrorRealEstate strives for accuracy and we make every effort to verify the information. However, MirrorRealEstate is not liable for the use or misuse of the site's information. The information displayed on MirrorRealEstate.com is for reference only.