7 Melissa Close, Hurstbridge VIC 3099
Property Details
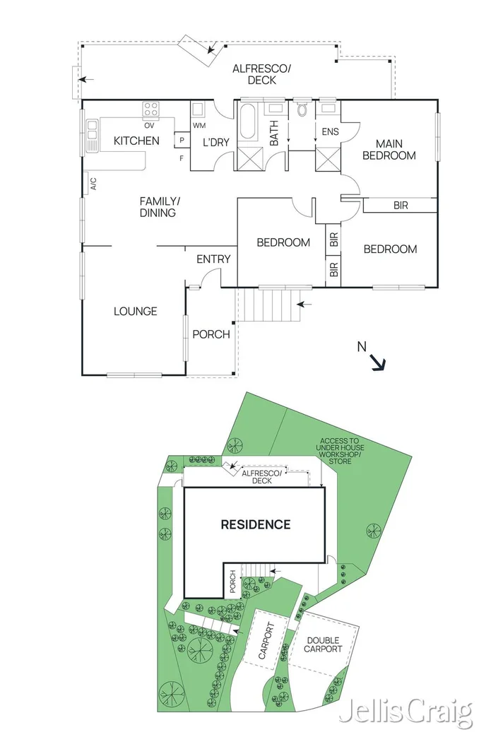
3
2
House
Description
Property Details: • Type: House
• Bedrooms: 3 • Bathrooms: 2
Description: Positioned in one of Hurstbridge's most convenient pockets, this inviting home offers an easy lifestyle just moments from everything you need. Set in a quiet cul-de-sac at 7 Melissa Close, you'll enjoy the luxury of leaving the car at home, with shops, schools, buses and the train station all within a short stroll. Inside, the home is bright and welcoming, featuring a sunlit lounge with an elevated outlook and a charming, country-inspired kitchen that flows into a casual meal and living area. Accommodation includes three comfortable bedrooms, with the main bedroom enjoying its own ensuite, while a fresh central bathroom services the rest of the home. Step outside to a spacious alfresco deck perfect for relaxing or entertaining while the low-maintenance surrounds make day-to-day living effortless. Additional highlights include ducted heating and cooling for year-round comfort, timber flooring, and a light, neutral interior. Practicality is well covered with a generous double driveway providing space for multiple vehicles, as well as room for a caravan or trailer, plus extensive under-house storage and a garden shed. A fantastic opportunity to secure a well-located home in the heart of Hurstbridge, where lifestyle and convenience come together.
Location
Address
7 Melissa Close, Hurstbridge VIC 3099
City
Hurstbridge
Legal Notice
Our comprehensive database is populated by our meticulous research and analysis of public data. MirrorRealEstate strives for accuracy and we make every effort to verify the information. However, MirrorRealEstate is not liable for the use or misuse of the site's information. The information displayed on MirrorRealEstate.com is for reference only.