7 Short Street, Tuncurry NSW 2428
Property Details
10
6
Block of Units
Description
Property Details: • Type: Block of Units
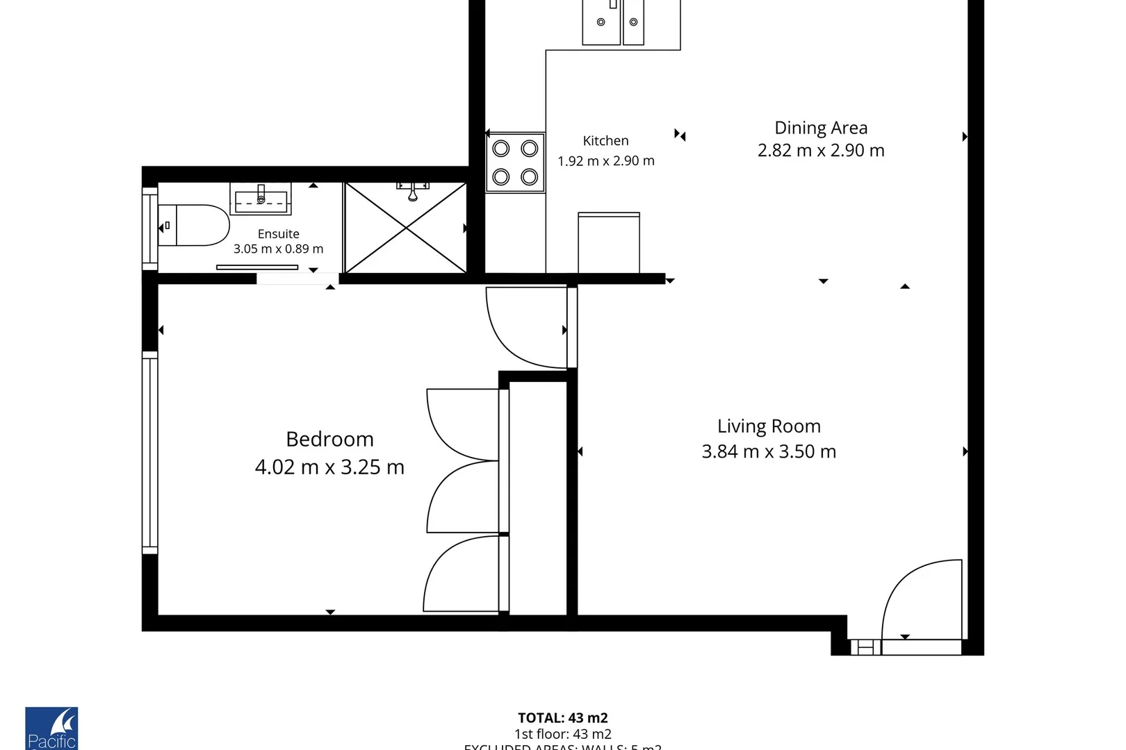
• Bedrooms: 10 • Bathrooms: 6
Description: Single level dwelling comprised of four two-bedroom units and two one-bedroom units, all currently tenanted. Units 1-4 have internal laundry facilities, with units 5 and 6 sharing a communal laundry within the complex. Each unit has a dedicated off-street parking space. Dual access from Short Street and Averys Lane Development potential (Subject to LCPA) No strata Just 600 meters from Tuncurry Bowling Club, and 900 meters from Woolworths. All information provided has been obtained from sources we believe to be reliable; however, we cannot guarantee its accuracy. Interested parties should make their own enquiries and rely on their own investigations in relation to the property. Some images may have been digitally enhanced, altered, or edited for marketing purposes, including the removal or blurring of personal items belonging to occupants.
Location
Address
7 Short Street, Tuncurry NSW 2428
City
Tuncurry
Features and Finishes
None
Legal Notice
Our comprehensive database is populated by our meticulous research and analysis of public data. MirrorRealEstate strives for accuracy and we make every effort to verify the information. However, MirrorRealEstate is not liable for the use or misuse of the site's information. The information displayed on MirrorRealEstate.com is for reference only.