71 Rocky Gully Road, Murray Bridge SA 5253
Property Details
3
2
House
Description
Property Details: • Type: House
• Bedrooms: 3 • Bathrooms: 2
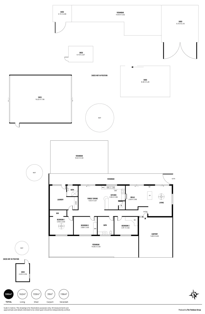
Description: Welcome to 71 Rocky Gully Road - a rare and exciting opportunity for buyers looking to roll up their sleeves and create something truly special. Set on a generous 4,048m² (approx. 1 acre) allotment, this 3-bedroom, 2-bathroom home offers solid bones, outstanding potential, and a range of lifestyle features ready to be enhanced through your personalised renovation. While the property needs work, it provides the perfect blank canvas for those wanting to add value, re-design, or completely transform a home to suit their needs. Whether you're a seasoned renovator, first-time flipper, or someone with a creative eye for potential, this is a project with serious upside. Inside, the home features a practical layout with multiple living options. The main living room includes a double-sided combustion heater, offering a charming focal point and a cosy warmth during the cooler months - a great feature to incorporate into your future design plans. Step outside and you'll find a fantastic entertaining area, ideal for gatherings and outdoor enjoyment. The lawn backyard, surrounded by native plantings, provides a peaceful and private space with plenty of room for landscaping, gardening, or further improvements. Multiple shedding options also give excellent scope for storage, hobbies, or workspace needs. Positioned on the outskirts of town, approximately a 5-minute drive from the township, this property offers quiet semi-rural living while still maintaining easy access to essential conveniences. Key Features: • 3 bedrooms, 2 bathrooms • Great renovation potential throughout • Living room with double-sided combustion heater • Fantastic entertaining area • Lawn backyard with native plants • Multiple shedding options • Approx. 4,048m² allotment • Ideal for extensions, landscaping, or custom design (STCC) • Peaceful location just minutes from town A prime opportunity to secure a spacious allotment and turn it into something truly special. Bring your vision - the possibilities here are endless. All information provided has been obtained from sources we believe to be accurate; however, we cannot guarantee the information is accurate, and we accept no liability for any errors or omissions (including but not limited to a property's land size, floor plans, and size, building age and condition). Interested parties should make their own inquiries and obtain their own legal advice.
Location
Address
71 Rocky Gully Road, Murray Bridge SA 5253
City
Murray Bridge
Features and Finishes
None
Legal Notice
Our comprehensive database is populated by our meticulous research and analysis of public data. MirrorRealEstate strives for accuracy and we make every effort to verify the information. However, MirrorRealEstate is not liable for the use or misuse of the site's information. The information displayed on MirrorRealEstate.com is for reference only.