100 W Ramona Avenue, Grover Beach, CA 93433
Property Details
4
None
None
None
Description
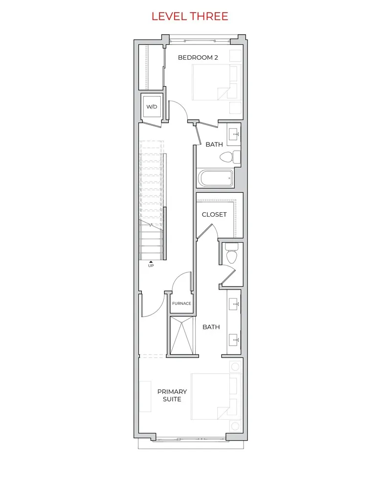
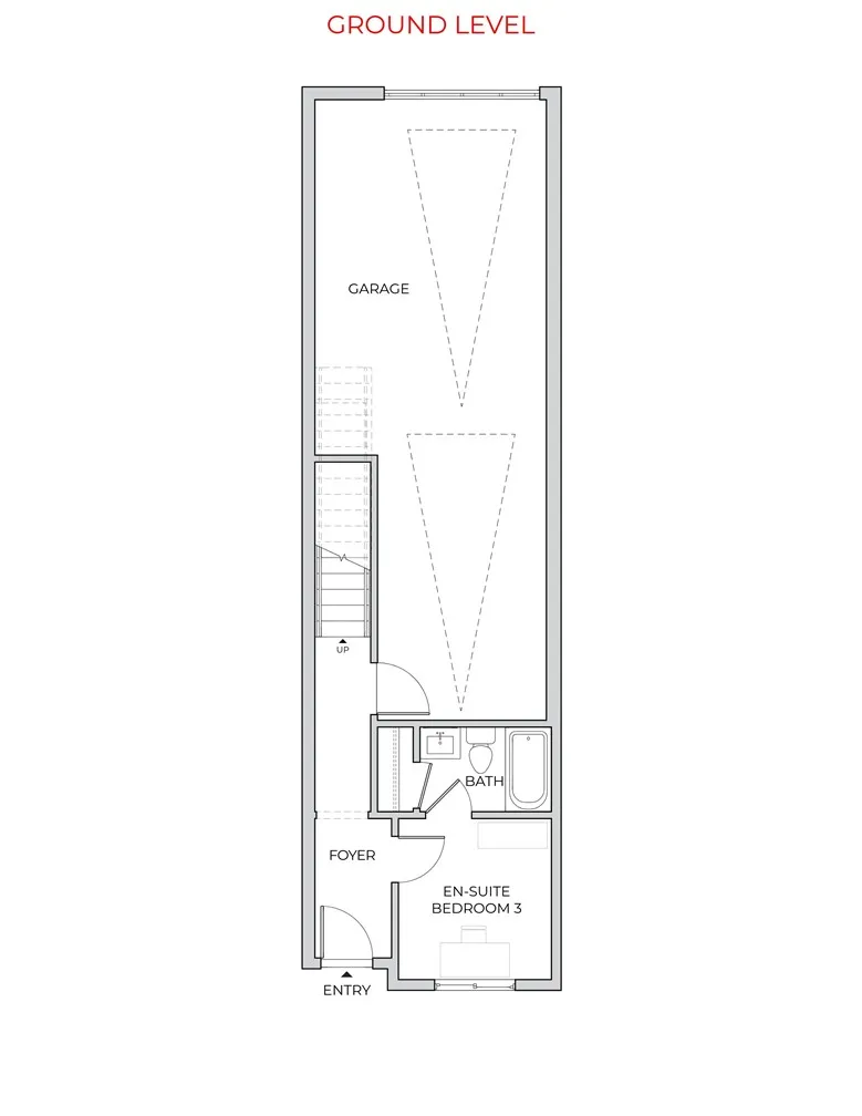
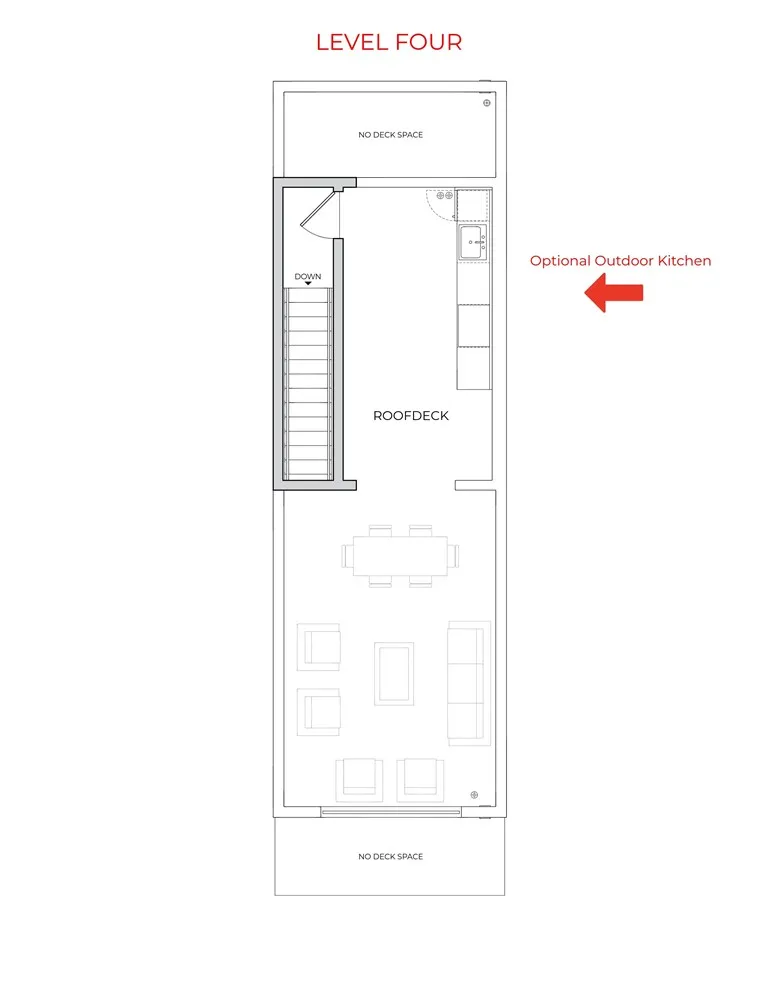
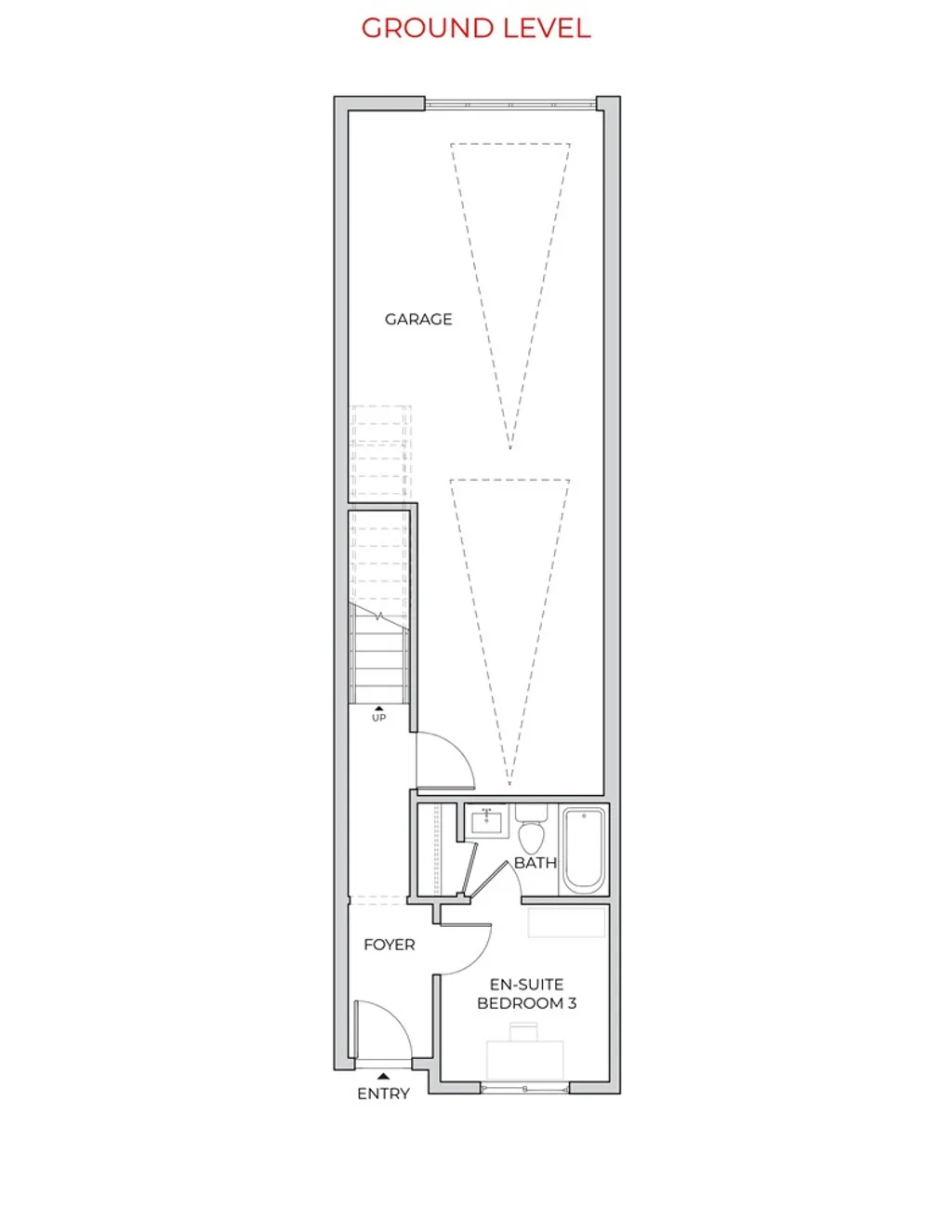
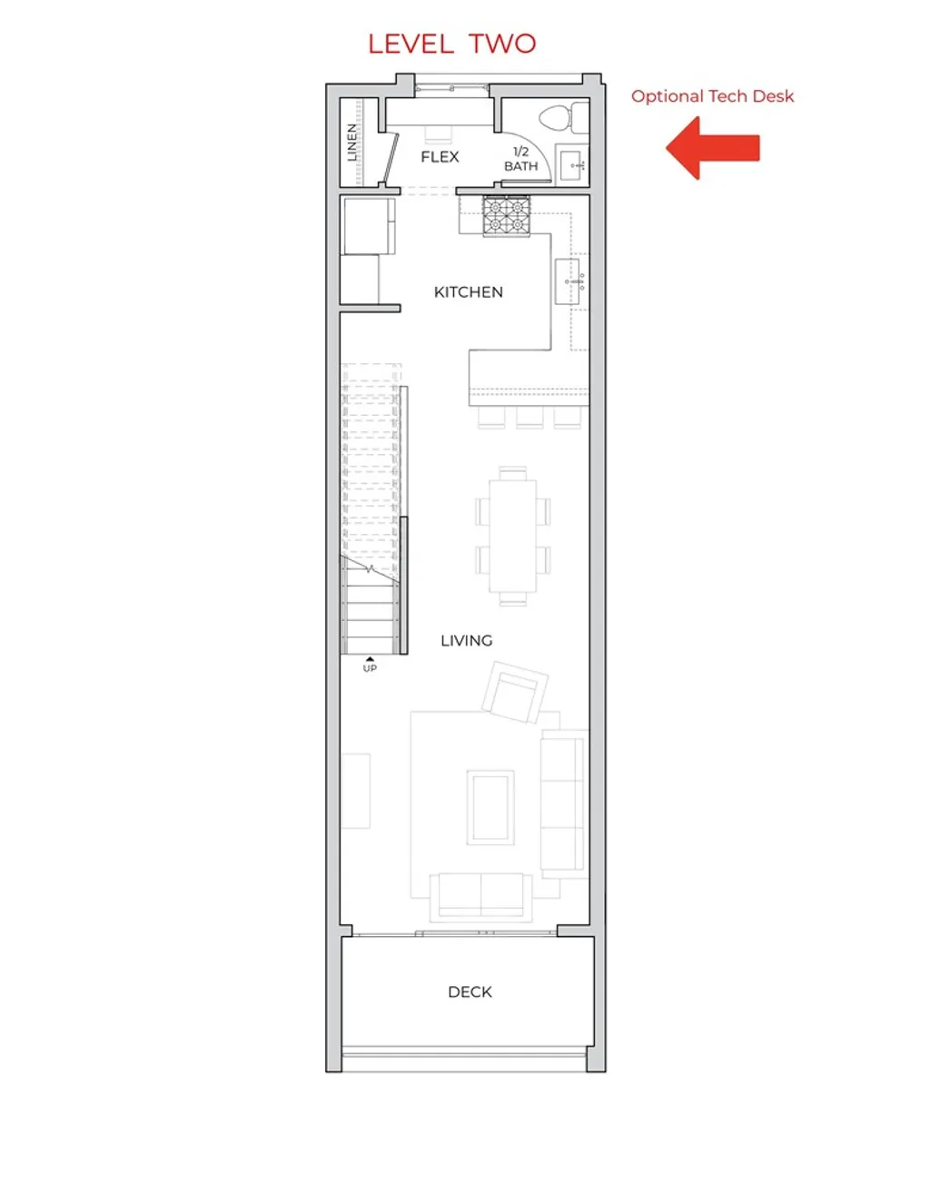
BRAND NEW CONSTRUCTION - Welcome to Lot 7 at Trinity, a limited collection of 23 luxury ocean-view townhomes and condominiums with spacious rooftop decks, located in Grover Beach's West End, just minutes from the shoreline. This contemporary 3-bedroom, 3.5-bath townhome offers open-concept living with modern and thoughtful finishes throughout. The kitchen features quartz countertops, designer cabinetry, and stainless-steel appliances. Multiple decks provide indoor-outdoor living. The primary bedroom is a tranquil retreat with a large sliding door to let the ocean breeze in and features an en-suite, spa-inspired bath and a spacious closet. The rooftop deck offers ocean and sunset views, with options for an outdoor kitchen and hot tub. Additional highlights include a two-car tandem garage with EV pre-wiring. The home is located near local beaches, cafes, farmers markets, and local wineries. Enjoy all that the Central Coast has to offer - all from your new coastal retreat.
PROPERTY DETAILS: Square Feet: 1967 | Bathrooms: 4
INTERIOR FEATURES: • Appliances: Dishwasher, Disposal, Gas Oven, Gas Range, Water Heater • Flooring: Vinyl, Carpet, See Remarks • Cooling: Central Air • Heating: Central • Common Walls: No Common Walls • Doors/Windows: Sliding Doors • Fireplaces: None • Additional Interior Features: Walk-In Closet(s), Breakfast Bar, Open Floorplan, Recessed Lighting
EXTERIOR FEATURES: • Parking: 2 Garage Spaces, 2 Parking Spaces, Attached Garage. • Exterior: Stucco • Patio: Patio, Deck • Roof: Composition • Pool Description: None • Spa: None • Lot View: Hill, Panoramic, Other • Fence: None • Structural Condition: Under Construction, New Construction • Additional Exterior/Lot Features: Balcony, Patio, Deck Level, Zero Lot Line
LISTING AGENT: Agent: Shauna Weisbecker | Office: Coastal Community Builders | Phone: 8052026318 | Email: [email protected]
LISTING INFORMATION: MLS#: PI25264493 | Status: FOR SALE
Location
Address
100 W Ramona Avenue
City
Grover Beach
Features and Finishes
Interior Features:
• Appliances: Dishwasher, Disposal, Gas Oven, Gas Range, Water Heater
• Flooring: Vinyl, Carpet, See Remarks
• Cooling: Central Air
• Heating: Central
• Common Walls: No Common Walls
• Doors/Windows: Sliding Doors
• Fireplaces: None
• Additional Interior Features: Walk-In Closet(s), Breakfast Bar, Open Floorplan, Recessed Lighting
Exterior Features:
• Parking: 2 Garage Spaces, 2 Parking Spaces, Attached Garage.
• Exterior: Stucco
• Patio: Patio, Deck
• Roof: Composition
• Pool Description: None
• Spa: None
• Lot View: Hill, Panoramic, Other
• Fence: None
• Structural Condition: Under Construction, New Construction
• Additional Exterior/Lot Features: Balcony, Patio, Deck Level, Zero Lot Line
Legal Notice
Our comprehensive database is populated by our meticulous research and analysis of public data. MirrorRealEstate strives for accuracy and we make every effort to verify the information. However, MirrorRealEstate is not liable for the use or misuse of the site's information. The information displayed on MirrorRealEstate.com is for reference only.