73 Dulcie Court, Booral QLD 4655
Property Details
Vacant Land
Description
Property Details: • Type: Vacant Land
• Bedrooms: 0 • Bathrooms: 0
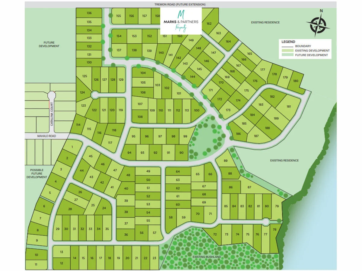
Description: Fraser Vista is now selling stage 3 with a selection of 2000sqm lots. This is your chance to select a block from a range of orientations, with frontage widths from 25m to 70m. Blocks at Fraser Vista are serviced with town water, underground water, and are NBN-Ready. Stage 3 civil works are nearing completion with titles anticipated to issue March 2026. Select your own builder to build your dream home and enjoy the Fraser Coast lifestyle. Fraser Vista is conveniently located just out of town and close to everything: 6 minutes' drive to River Heads convenience centre 8 mins to boat ramp and airport 11 minutes to primary and secondary schools 15 mins to Urangan Boat Club, Marina, 16 mins to Medical precinct and hospitals 18 mins to Hervey Bay Town Centre and Stockland shopping Centre. 20 mins to Hervey Bay Golf Club Other blocks available from 2001sqm to 3376sqm and priced from $435,000 to $599,000. For more information or to arrange an onsite inspection contact Rod on 0408 619 491 or [email protected] Disclaimer: *Prices and status are correct at time of publication and subject to change without notice. Images and representations may be indicative only, not of actual property featured. Purchasers should inform and assure themselves by inspection or independent advice prior to purchase.
Location
Address
73 Dulcie Court, Booral QLD 4655
City
Booral
Features and Finishes
None
Legal Notice
Our comprehensive database is populated by our meticulous research and analysis of public data. MirrorRealEstate strives for accuracy and we make every effort to verify the information. However, MirrorRealEstate is not liable for the use or misuse of the site's information. The information displayed on MirrorRealEstate.com is for reference only.