37702 50th Street E, Palmdale, CA 93552
Property Details
2
None
None
None
Description
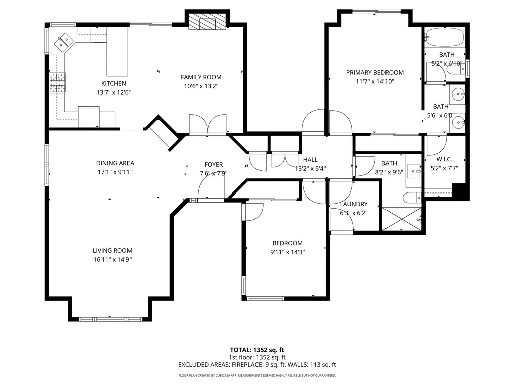
Great opportunity to purchase a single-story, single-family home, with no HOA and no Mello Roos tax bonds! This beautiful home features: an open floor plan with the living room and the dining room in one open space. A kitchen that opens to the family room with cozy fireplace. A primary suite bedroom and bathroom, the bathroom features a dual vanity and sinks, and a privacy door leading to the shower/tub combo, and a walk-in closet for great storage space. There is no carpet, only laminate flooring and tile flooring. The kitchen features granite countertops, stainless steel appliances and sink, and white cabinetry. Bathrooms have been improved with granite counters, white shaker cabinets, and stylish mirrors, and floor to ceiling tiles in the guest. Throughout the house you'll notice the ceilings have recessed lighting and it provides excellent lighting throughout. The laundry area is conveniently located inside the house, adjacent to the 2 car garage with direct access to the house. In the backyard you'll notice a patio cover, and a good size yard that can potentially fit a swimming pool or an ADU (buyer to verify). Please be aware that some of the photos have been virtually enhanced by AI marked with a star on the bottom right corner, click on the photo description to read the details, and those photos are followed by the actual real life view photos.
PROPERTY DETAILS: Square Feet: 1495 | Bathrooms: 2
INTERIOR FEATURES: • Appliances: Water Heater, Disposal, Refrigerator, Range Hood, Gas Range, Dishwasher • Flooring: Tile, Laminate • Cooling: Central Air • Heating: Central • Common Walls: No Common Walls • Fireplaces: Family Room • Security: Carbon Monoxide Detector(s), Smoke Detector(s) • Additional Interior Features: Open Floorplan
EXTERIOR FEATURES: • Parking: 2 Garage Spaces, 4 Parking Spaces, Attached Garage. • Patio: Patio, Covered • Roof: Spanish Clay Tile • Pool Description: None • Spa: None • Lot View: Other • Fence: Block, Vinyl, Wood • Additional Exterior/Lot Features: Patio
LISTING AGENT: Agent: Jose Alonso | Office: RE/MAX Gateway | Phone: 8184720618 | Email: [email protected]
LISTING INFORMATION: MLS#: SR26060709 | Status: FOR SALE
Location
Address
37702 50th Street E
City
Palmdale
Features and Finishes
Interior Features:
• Appliances: Water Heater, Disposal, Refrigerator, Range Hood, Gas Range, Dishwasher
• Flooring: Tile, Laminate
• Cooling: Central Air
• Heating: Central
• Common Walls: No Common Walls
• Fireplaces: Family Room
• Security: Carbon Monoxide Detector(s), Smoke Detector(s)
• Additional Interior Features: Open Floorplan
Exterior Features:
• Parking: 2 Garage Spaces, 4 Parking Spaces, Attached Garage.
• Patio: Patio, Covered
• Roof: Spanish Clay Tile
• Pool Description: None
• Spa: None
• Lot View: Other
• Fence: Block, Vinyl, Wood
• Additional Exterior/Lot Features: Patio
Legal Notice
Our comprehensive database is populated by our meticulous research and analysis of public data. MirrorRealEstate strives for accuracy and we make every effort to verify the information. However, MirrorRealEstate is not liable for the use or misuse of the site's information. The information displayed on MirrorRealEstate.com is for reference only.