7427 Copeland Road
Property Details
4
3
Owner
Description
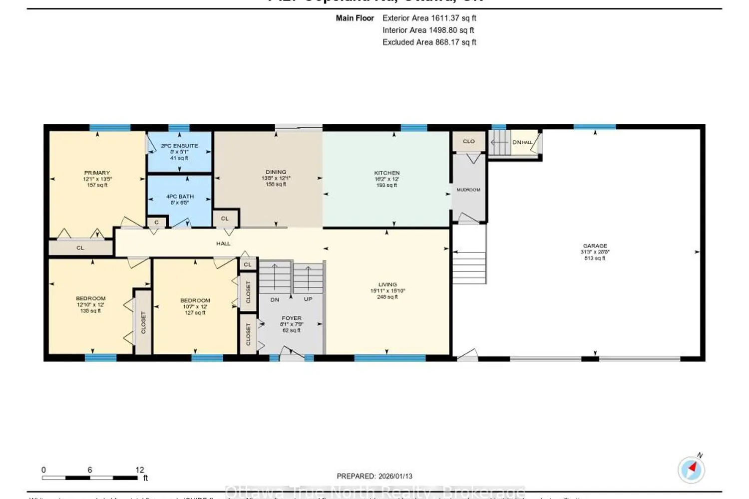
Solid, spacious, and thoughtfully updated, this all-brick high-ranch bungalow offers the perfect blend of comfortable family living and rural functionality. Built in 1988 and set on a level 2.0-acre lot, the property is zoned RU (Rural) and features an oversized driveway, double attached garage, and classic curb appeal that stands the test of time. The main floor offers three generous bedrooms, including a primary bedroom with a 2-piece ensuite, complemented by a full 4-piece family bath. Hardwood flooring is featured in the main living areas and primary bedroom, with carpeted flooring in two additional bedrooms, while patio doors lead to a raised deck-ideal for entertaining or unwinding at the end of the day. The lower level expands the living space with a recreation room featuring a brick fireplace, a built-in bar, an additional bedroom, 3-piece bathroom, and a workshop, making it well suited for guests, hobbies, or multi-generational living. This home has seen substantial mechanical and infrastructure upgrades, including a full septic bed replacement (September 2022), Generac on-demand generator (November 2022), and furnace, air conditioner, hot water tank, and Venmar air exchange (September 2020). Additional updates include garage doors (2021), new garage door opener (January 2024), and an upgraded alarm system (2024).The home is serviced by a drilled well, 200-amp service with copper wiring, central vacuum, and Xplornet high-speed internet, supported by newer towers in Munster and Copeland. The roof covering was updated in 2010. Alarm monitoring and propane tanks are rented. A standout feature of the property is the 40' x 36' outbuilding (2005)-ideal for equipment storage, workshop use, or hobbyists needing serious space. A well-maintained rural property offering space, reliability, and peace of mind, with the infrastructure already in place to support both everyday living and long-term use.
Location
Address
7427 Copeland Road
City
Ottawa
Features and Finishes
None
Legal Notice
Our comprehensive database is populated by our meticulous research and analysis of public data. MirrorRealEstate strives for accuracy and we make every effort to verify the information. However, MirrorRealEstate is not liable for the use or misuse of the site's information. The information displayed on MirrorRealEstate.com is for reference only.