75 Bluegate Street, Box Hill NSW 2765
Property Details
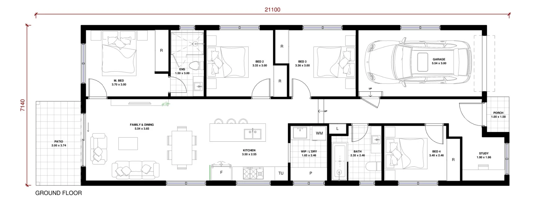
4
2
Vacant Land
Description
Property Details: • Type: Vacant Land
• Bedrooms: 4 • Bathrooms: 2
Description: House & Land Package in Box hill with Upgraded Inclusions! Presenting our brand-new deal in, We have a 4 Bedroom Single Story House close to all amenities, Inclusions are listed below. Option to Build Single or Double story house. Inclusion List: - Free upgrade to 60mm benchtop to kitchen island - Premium tiles to ground floor and wet areas and laminated timber to first floor - Free upgrade floor to ceiling tiles to main bathroom and ensuite - Westinghouse Stainless steel appliances including 900mm rangehood - Dishwasher - Semi-frameless shower screens to Master & Main bathrooms - Stone benchtops to kitchen & Vanities - Free Standing Bath - Upgrade to triple coat paint system - 2700mm Ceiling Height to ground floor - Concrete to porch & Alfresco - 35 Downlights package - Automatic sectional garage door - Wall and Ceiling insulation - Basix report inclusive of rainwater tank - Coloured concrete driveway & path - External & Internal steps Book a inspection Call Satveer Nagra:- Satveer Nagra 0432479562 Disclaimer: - Sapphire Estate Agents believes that all information contained herein to be true and correct to the best of our ability and in no way misleading, however, all interested parties are advised to carry out their own enquirers. All the photos are illustrative purposes only.
Location
Address
75 Bluegate Street, Box Hill NSW 2765
City
Box Hill
Features and Finishes
None
Legal Notice
Our comprehensive database is populated by our meticulous research and analysis of public data. MirrorRealEstate strives for accuracy and we make every effort to verify the information. However, MirrorRealEstate is not liable for the use or misuse of the site's information. The information displayed on MirrorRealEstate.com is for reference only.