76 Goomalling-Toodyay Road, Dumbarton WA 6566
Property Details
Vacant Land
Description
Property Details: • Type: Vacant Land
• Bedrooms: 0 • Bathrooms: 0
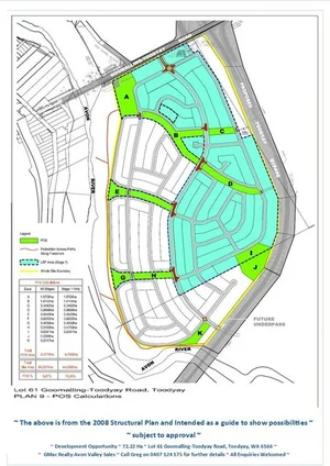
Description: Imagine developing a thriving residential community in the picturesque town of Toodyay, Western Australia. This expansive block of land will accommodate many new homes, lots of exciting facilities and businesses, offering a unique opportunity to create a serene yet accessible living environment. Location and Accessibility: Close proximity to Perth, providing the best of both worlds rural tranquility and close access to urban convenience. Community Appeal: Toodyay is experiencing steady population growth, driven by its natural beauty and community appeal. The town is well-equipped with essential infrastructure, including a school currently to year 10, healthcare facilities, cafés, the bakery, restaurants, pubs, hardware stores an IGA plus more Current Housing Demand: The need for housing in Western Australia is great at this point in time, driven by population growth and urban expansion. Investment Potential: Various government incentives may be available to developers, enhancing the financial attractiveness of this venture. Possibilities ~: A Great Quality Opportunity for Families: This development offers a wonderful chance for families to have a fresh start in life in a beautiful rural town. The serene environment and community-oriented lifestyle make it an ideal place for raising children and for all ages to enjoy a high quality of life. Affordable Housing: Developing affordable housing units to meet the needs of low to moderate-income families. Community Facilities: Potential for community facilities, parks, and recreational areas to enhance the quality of life for residents. Mixed-Use Development: Opportunities for combining residential, commercial, and retail spaces to create a vibrant, self-sustaining community. Educational Institutions: Schools or training centres to enhance the community's educational infrastructure. Healthcare Facilities: Medical and wellness clinics to offer essential healthcare services. Green Spaces and Parks: Public parks and community gardens for relaxation and community involvement. Aged Care Centre: Ideal space for developing an aged care facility, providing much-needed services for the elderly population, with quality space for carers to live, ensuring convenience and attracting quality employees. Sustainable Energy Projects: Solar or wind farms to promote sustainability. Cultural and Arts Centers: Spaces for cultural activities, art exhibitions, and performances. Sustainability and Modern Amenities: Potential for sustainable and eco-friendly building practices to cater to environmentally conscious buyers. Inclusion of modern amenities and smart home technologies to add significant value. ***** Council Permissions: Please note some of these uses may require necessary permissions from the local council. Developers and all interested parties must of course ensure they obtain all required approvals and comply with local regulations. Some older maps show a proposed Toodyay bypass, we understand from contacting Main Roads this project is shelved, has no funding or sufficient justification envisaged at present Conclusion: Don't miss this chance to be part of Toodyay's growth story and create a legacy of quality living Call Greg 0407 124 175 for more ~ All Enquiries Welcome ~ GMAC Realty ~ Avon Valley Sales ~
Location
Address
76 Goomalling-Toodyay Road, Dumbarton WA 6566
City
Dumbarton
Features and Finishes
None
Legal Notice
Our comprehensive database is populated by our meticulous research and analysis of public data. MirrorRealEstate strives for accuracy and we make every effort to verify the information. However, MirrorRealEstate is not liable for the use or misuse of the site's information. The information displayed on MirrorRealEstate.com is for reference only.