7625 Fairway Boulevard, Hope Island QLD 4212
Property Details
5
5
House
Description
Property Details: • Type: House
• Bedrooms: 5 • Bathrooms: 5
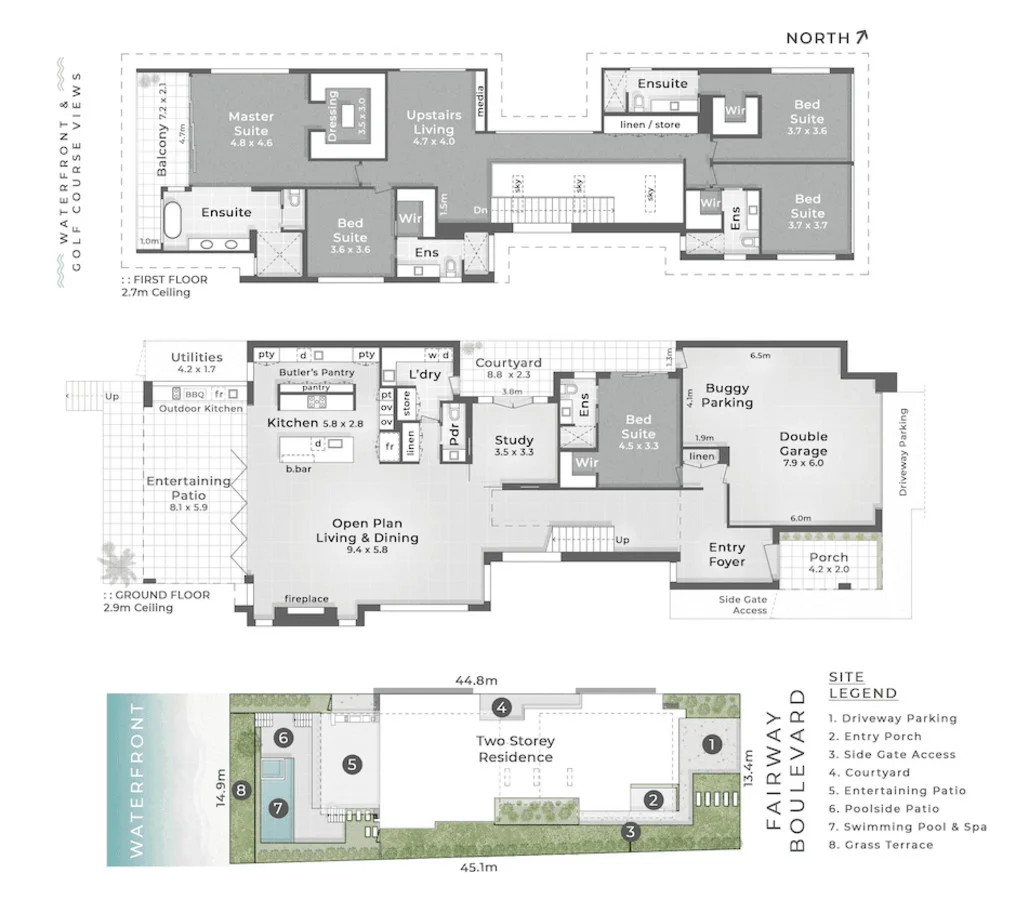
Description: Positioned within the prestigious Hope Island Resort, this impressive residence delivers space, privacy and premium waterfront living. Offering five generous bedrooms, multiple living zones and seamless indooroutdoor flow, this home is perfectly suited to families or executive tenants seeking a refined coastal lifestyle. Set on Fairway Island, the property enjoys a peaceful setting with water and golf course surrounds, all within a secure gated community just minutes to world-class amenities. Property Features: 5 spacious bedrooms, each with built-in robes 5 well-appointed bathrooms Multiple living and entertaining areas + pool, spa & BBQ Modern kitchen with quality finishes and ample storage + butlers kitchen Seamless indoor/outdoor flow ideal for entertaining Double lock-up garage + space for buggy parking Positioned within secure, gated estate with 24/7 security Prestigious waterfront/golf course location Location Highlights: Access to championship golf courses Close to Hope Island Marina, cafés and restaurants Minutes to Sanctuary Cove dining and retail precinct Easy access to the M1 for Brisbane and Gold Coast travel Short drive to Gold Coast beaches Enjoy the security, lifestyle and prestige that Hope Island Resort living is known for. Open homes are subject to change, so please ensure that you book into the inspection to receive SMS and email alerts about any changes. Tenants Frequently Asked Questions: Do I have to pay for water usage? Yes Do I have to maintain the lawn and garden? Yes Is the property furnished or unfurnished? unfurnished or furnished What is the initial lease term length offered? To be confirmed upon application Disclaimer: While every effort has been made to ensure the accuracy and reliability of the information provided, we make no representations or warranties, express or implied, as to its completeness or correctness. We accept no responsibility and disclaim all liability for any errors, omissions, or inaccuracies. Prospective parties should conduct their own investigations to verify the information before making any decisions.
Location
Address
7625 Fairway Boulevard, Hope Island QLD 4212
City
Hope Island
Legal Notice
Our comprehensive database is populated by our meticulous research and analysis of public data. MirrorRealEstate strives for accuracy and we make every effort to verify the information. However, MirrorRealEstate is not liable for the use or misuse of the site's information. The information displayed on MirrorRealEstate.com is for reference only.