770 Barton St
CAD 1,299,900
For Sale
MLS: 40676860
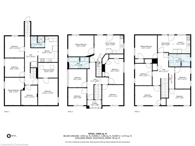
Property Details
Bedrooms
10
Bathrooms
3
Property Type
Single Family Residence
Description
MLS#: 40676860 Type: Single Family Residence Living Space: 3270 sqft Year Built: 1935 Parking Spaces: 10 Garage Spaces: 1 Basement: Separate Entrance, Walk-Out Access, Walk-Up Access, Full, Finished Swimming Pool: No Lot Size: 47 x 105 Annual Taxes: $3302
Location
Address
770 Barton St
City
Hamilton
Legal Notice
Our comprehensive database is populated by our meticulous research and analysis of public data. MirrorRealEstate strives for accuracy and we make every effort to verify the information. However, MirrorRealEstate is not liable for the use or misuse of the site's information. The information displayed on MirrorRealEstate.com is for reference only.