5207 Lee Rd 279, Salem, AL 36874

USD 359900 For Sale
MLS: E102701

Property Details

Bathrooms

2

Description

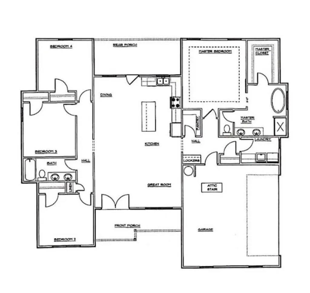
Situated on 5+/- Acres. Beautiful under construction home in Salem, Lee County, AL! 4/2 with open floor plan. Kitchen has quartz countertops, custom subway tile backsplash, soft close drawers and stainless steel appliances. Master bath also features quartz countertops, separate shower, stand alone tub and double vanity. Large lot with covered patio. Driveway will be partially gravel. Seller is brother-in-law of listing agent. Expected Completion Date: 03-18-2026. Current taxes are based on vacant lot.

PROPERTY DETAILS: Square Feet: 1800 | Bathrooms: 2

INTERIOR FEATURES: • Appliances: Dishwasher, Electric Range, Microwave • Flooring: Vinyl • Cooling: Central Air, Electric, Ceiling Fan(s) • Heating: Electric Heating, Heat Pump • Plumbing: Electric Water Heater • Common Walls: No Common Walls • Basement: None • Doors/Windows: Double Pane Windows • Fireplaces: None • Security: Smoke Detector(s) • Additional Interior Features: Walk-In Closet(s)

EXTERIOR FEATURES: • Parking: 2 Garage Spaces, 2 Covered Parking Spaces, Attached Garage, Garage, Garage Door Opener, Garage Faces Side. • Patio: Rear Porch, Covered • Roof: Composition • Pool Description: None • Spa: None • Lot View: Other, Trees/Woods • Lot Dimensions: 574x272x590x469 • Body of Water: None • Fence: None • Structural Condition: Under Construction • Additional Exterior/Lot Features: Rear Porch Level, Sloped

LISTING AGENT: Agent: Heather Hallam | Office: Keller Williams Realty River C | Phone: 7066814705 | Email: [email protected]

LISTING INFORMATION: MLS#: E102701 | Status: Pending

Location

Address

5207 Lee Rd 279

City

Salem

Features and Finishes

Interior Features:

• Appliances: Dishwasher, Electric Range, Microwave

• Flooring: Vinyl

• Cooling: Central Air, Electric, Ceiling Fan(s)

• Heating: Electric Heating, Heat Pump

• Plumbing: Electric Water Heater

• Common Walls: No Common Walls

• Basement: None

• Doors/Windows: Double Pane Windows

• Fireplaces: None

• Security: Smoke Detector(s)

• Additional Interior Features: Walk-In Closet(s)

Exterior Features:

• Parking: 2 Garage Spaces, 2 Covered Parking Spaces, Attached Garage, Garage, Garage Door Opener, Garage Faces Side.

• Patio: Rear Porch, Covered

• Roof: Composition

• Pool Description: None

• Spa: None

• Lot View: Other, Trees/Woods

• Lot Dimensions: 574x272x590x469

• Body of Water: None

• Fence: None

• Structural Condition: Under Construction

• Additional Exterior/Lot Features: Rear Porch Level, Sloped

Legal Notice

Our comprehensive database is populated by our meticulous research and analysis of public data. MirrorRealEstate strives for accuracy and we make every effort to verify the information. However, MirrorRealEstate is not liable for the use or misuse of the site's information. The information displayed on MirrorRealEstate.com is for reference only.

Real Estate Broker
Heather Hallam
Brokerage
Keller Williams Realty River C
Likes

0

Views

17

This website uses cookies to ensure you get the best experience. Learn more