79 Stevenson Way, Orange NSW 2800
Property Details
Vacant Land
Description
Property Details: • Type: Vacant Land
• Bedrooms: 0 • Bathrooms: 0
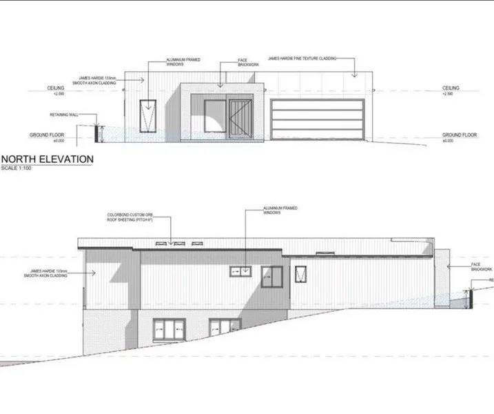
Description: If you've been searching for the perfect place to build your dream home, this generous 875m² block is ready and waiting. Positioned in a sought-after pocket of North Orange, Lot 42 / 79 Stevenson Way offers the ideal opportunity to create a spacious family home in a quality estate surrounded by established amenities and natural beauty. Set on an elevated site with a desirable south-west outlook, this impressive parcel enjoys views towards Mount Canobolas and provides the perfect foundation for a stylish, comfortable lifestyle home. With no easements and CDC construction plans available, much of the groundwork has already been done, making this an exciting and convenient opportunity for buyers ready to build. Property Features: 875m² registered block Elevated position with south-west views Outlook towards Mount Canobolas No easements Located in a popular and growing North Orange estate CDC construction plans available Includes engineering and plans for a 300m² home Proposed design includes: o 4 bedrooms o 3 living areas o Open plan kitchen, dining and living o Balcony positioned to capture the views Conveniently Located Near: North Orange Shopping Centre approx. 1.3km Orange Botanic Gardens approx. 650m Orange Adventure Playground approx. 700m Whether you're planning your forever home or looking for a premium parcel in a thriving location, this block offers space, views, convenience, and outstanding potential. Build the lifestyle you've been dreaming of in one of Orange's most desirable northern locations. Disclaimer: The information provided above has been supplied by the vendor. We do not take responsibility for its accuracy and merely pass it on. Interested parties should conduct their own investigations to verify the information's accuracy. We recommend prospective buyers seek legal and financial advice before entering into any contractual agreement.
Location
Address
79 Stevenson Way, Orange NSW 2800
City
Orange
Features and Finishes
None
Legal Notice
Our comprehensive database is populated by our meticulous research and analysis of public data. MirrorRealEstate strives for accuracy and we make every effort to verify the information. However, MirrorRealEstate is not liable for the use or misuse of the site's information. The information displayed on MirrorRealEstate.com is for reference only.