715 Mountain View Street, Altadena, CA 91001

USD 950000 For Sale
MLS: PW25273074

Property Details

Bathrooms

1

Description

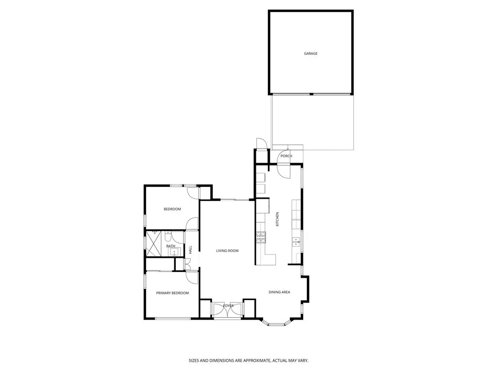
This charming home is hitting the market for the first time in over 30 years. Featuring two bedrooms and one bathroom, it's an ideal opportunity for first-time buyers or families looking for a property with expansion potential. The home offers fresh interior paint, a remodeled bathroom, hardwood flooring, and a spacious galley kitchen.Sitting on an impressive 16,000+ square-foot lot, the property provides ample room to expand the existing home, build an ADU, or even develop multiple units. You can also rent out the current structure while designing and building your dream home - there are endless possibilities to customize this space to your vision. The lot also includes 3 existing horse box stalls, perfect for equestrian buyers or those seeking unique additional space. This is a Trust sale the property being sold AS IS.

PROPERTY DETAILS: Square Feet: 884 | Bathrooms: 1

INTERIOR FEATURES: • Appliances: Dishwasher, Gas Cooktop • Flooring: Wood • Cooling: Central Air • Heating: Central • Plumbing: Gas Water Heater • Common Walls: No Common Walls • Fireplaces: None • Security: Carbon Monoxide Detector(s), Smoke Detector(s), Window Bars • Additional Interior Features: Tile Counters

EXTERIOR FEATURES: • Parking: 2 Garage Spaces, 2 Parking Spaces, Driveway, Concrete. • Patio: Patio, None • Pool Description: None • Spa: None • Lot View: Mountain • Additional Exterior/Lot Features: Patio

LISTING AGENT: Agent: Marlo Hoggro-King | Office: Keller Williams Realty | Phone: 5625474324 | Email: [email protected]

LISTING INFORMATION: MLS#: PW25273074 | Status: FOR SALE

Location

Address

715 Mountain View Street

City

Altadena

Features and Finishes

Interior Features:

• Appliances: Dishwasher, Gas Cooktop

• Flooring: Wood

• Cooling: Central Air

• Heating: Central

• Plumbing: Gas Water Heater

• Common Walls: No Common Walls

• Fireplaces: None

• Security: Carbon Monoxide Detector(s), Smoke Detector(s), Window Bars

• Additional Interior Features: Tile Counters

Exterior Features:

• Parking: 2 Garage Spaces, 2 Parking Spaces, Driveway, Concrete.

• Patio: Patio, None

• Pool Description: None

• Spa: None

• Lot View: Mountain

• Additional Exterior/Lot Features: Patio

Legal Notice

Our comprehensive database is populated by our meticulous research and analysis of public data. MirrorRealEstate strives for accuracy and we make every effort to verify the information. However, MirrorRealEstate is not liable for the use or misuse of the site's information. The information displayed on MirrorRealEstate.com is for reference only.

Real Estate Broker
Marlo Hoggro-King
Brokerage
Keller Williams Realty
Likes

0

Views

32

This website uses cookies to ensure you get the best experience. Learn more