8/18 Haskell Road, Brighton TAS 7030
Property Details
3
1
Apartment / Unit / Flat
Description
Property Details: • Type: Apartment / Unit / Flat
• Bedrooms: 3 • Bathrooms: 1
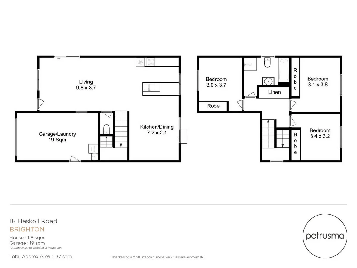
Description: Nestled in the heart of the highly sought-after suburb of Brighton, sits this thoughtfully designed town house, ready for its next tenant. The property has been meticulously crafted to the highest standards, featuring quality fixtures, fittings, and appliances that seamlessly blend modernity with a warm, homely ambiance. The ground floor of the property is designed for convenience and accessibility. The level entry makes coming and going a breeze, while the open plan living spaces are bathed in natural light, creating an inviting atmosphere for you and your family. The sleek kitchen is not only stylish, but also functional, offering ample counter space and abundant cupboard storage. The "L"-shaped floorplan cleverly separates the dining area from the living room, providing a distinct yet connected space, all within reach of the kitchen. For added convenience, there's a downstairs toilet. As you ascend to the upper level, you'll discover three well-appointed bedrooms, each equipped with built-in robes. These comfortable living spaces are served by a central bathroom that includes a separate bath, shower, vanity, and toilet. The home boasts a single car garage with internal entry to the hoe, providing additional security. Additionally, there's off-street parking available for one more vehicle. - 3 Bedrooms with BIR - Secure garage, internal access + 1 OSP - Modern, quality fixtures and timeless appeal - Private and secure yard - Reverse Cycle Heat pump. - Dishwasher provided - At any stage before or throughout this tenancy, the Tenant will be required to seek the Owner's consent using the approved form to keep a pet at the premises. This form can be found on the CBOS Tas Website or visit - https://cbos.tas.gov.au/__data/assets/pdf_file/0010/843337/Approved-Form-36R-36S-Request-to-keep-a-pet-on-residential-premises-March-2026.pdf -We welcome applications from Interstate and may be able to arrange FaceTime/virtual viewings. Please contact the Property Manager directly for more information. Please note the following: To view this property please register online, you will receive an Email and/or SMS as soon as Inspection Times are available. DISCLAIMER: We would like applicants to be aware that the paid verification "Tenant Check" offered by *** or their "Ignite" application platform is not supported by or affiliated with Petrusma Property Management, and is a product of *** directly. It is neither a compulsory requirement when applying for a property nor will it ensure your application is successful or prioritised.
Location
Address
8/18 Haskell Road, Brighton TAS 7030
City
Brighton
Features and Finishes
None
Legal Notice
Our comprehensive database is populated by our meticulous research and analysis of public data. MirrorRealEstate strives for accuracy and we make every effort to verify the information. However, MirrorRealEstate is not liable for the use or misuse of the site's information. The information displayed on MirrorRealEstate.com is for reference only.