8/2 Walsh Loop, Joondalup WA 6027
Property Details
2
2
Apartment / Unit / Flat
Description
Property Details: • Type: Apartment / Unit / Flat
• Bedrooms: 2 • Bathrooms: 2
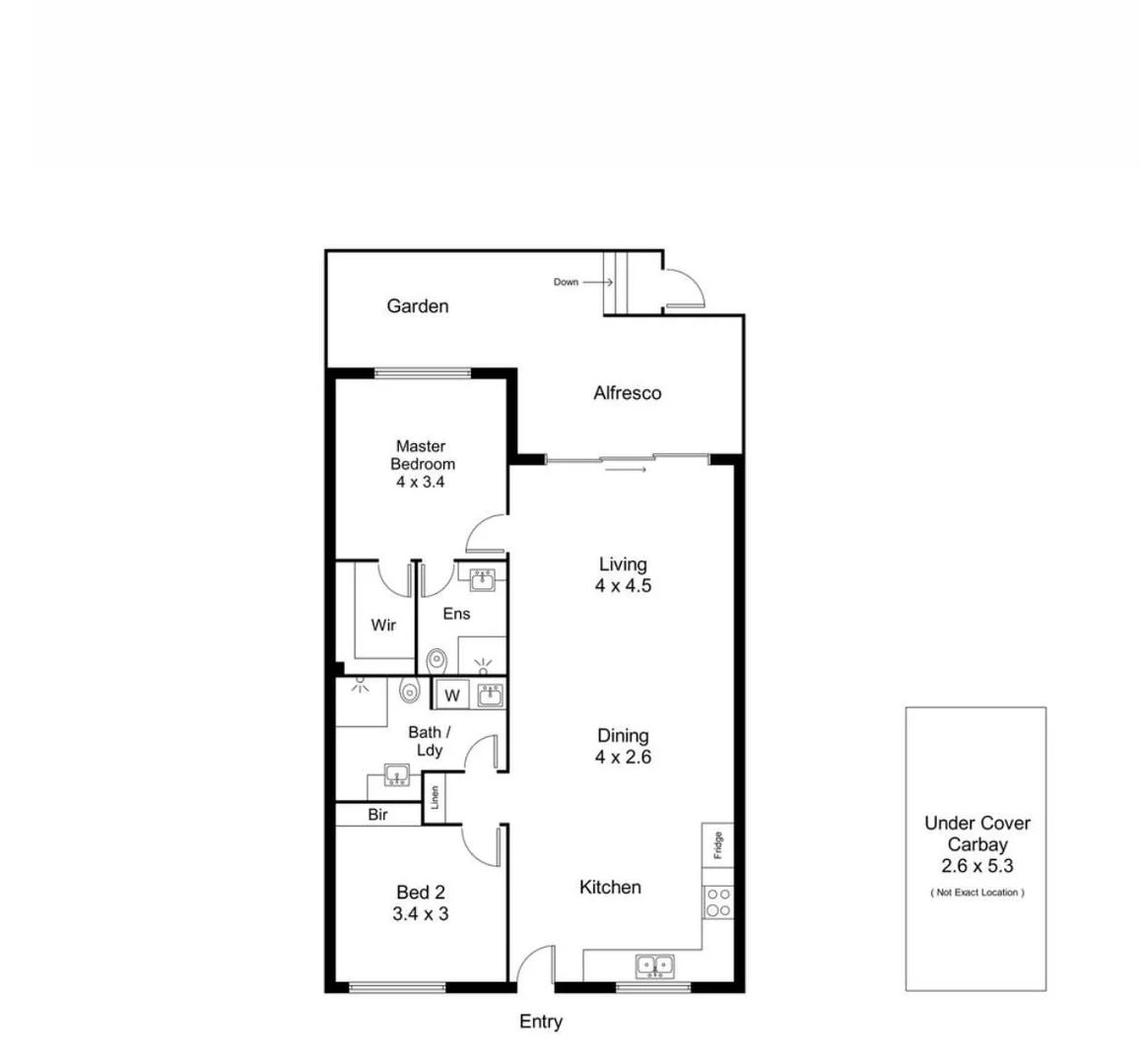
Description: Enjoy low-maintenance living in the heart of Joondalup, just moments from Lakeside Joondalup Shopping City, Edith Cowan University, Joondalup Health Campus and leafy surrounds like Neil Hawkins Park. This modern, two bedroom and two bathroom, ground floor apartment offers comfort, convenience and access to fantastic complex amenities. PROPERTY FEATURES: • Ground floor apartment • Master bedroom with walk-in robe and private ensuite • Secondary bedroom with mirrored built-in robe • Well-appointed kitchen with electric stovetop • Open plan living and dining area • Split system air conditioning to living room • Single undercover car bay • Private storage room • Access to shared inground pool within complex • Access to onsite gym facilities • Secure, low-maintenance lifestyle in a prime location • Unfurnished property VIEWING & APPLICATION INFORMATION • Does this property tick the boxes? Yes - Click the 'BOOK AN INSPECTION' button. If there isn't a time available, send through the enquiry so you can be contacted when one is booked and/or emailed updates. Registrations are MANDATORY, no registration, no updates. Please be aware, if there isn't a time available, there may have already been an inspection and applications pending. • The property MUST be viewed by yourself or someone on your behalf before you can apply. We will not carry out virtual inspections. • Applications will NOT be accepted prior to viewing • We use the 2Apply platform so you are welcome to prepare your profile - after the viewing, you will be sent the code to submit your application • Something else you need to know? Please EMAIL your enquiry as we are often on the road, in appointments or with clients and do not have the information at hand. • SCAM BE AWARE - we will only ever accept an applicant via phone before following up with an email confirmation. We do not advertise on Facebook Marketplace. If in doubt, call to confirm the legitimacy before transferring any funds
Location
Address
8/2 Walsh Loop, Joondalup WA 6027
City
Joondalup
Legal Notice
Our comprehensive database is populated by our meticulous research and analysis of public data. MirrorRealEstate strives for accuracy and we make every effort to verify the information. However, MirrorRealEstate is not liable for the use or misuse of the site's information. The information displayed on MirrorRealEstate.com is for reference only.