8 Dixie Road, Kelmscott WA 6111
Property Details
4
2
House
Description
Property Details: • Type: House
• Bedrooms: 4 • Bathrooms: 2
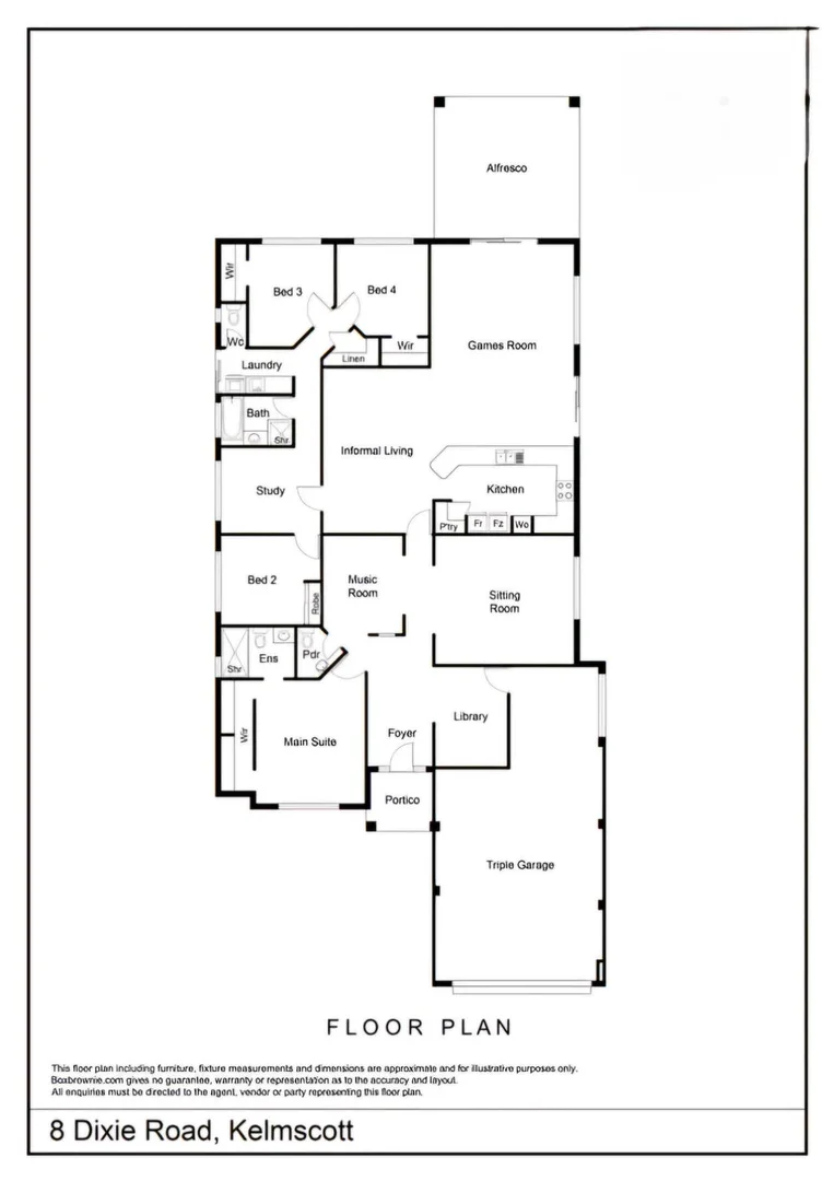
Description: Your Next Home and Your Next Project in One Set on a massive 923sqm block in one of Kelmscott's most sought-after pockets, 8 Dixie Road is all about space, comfort and flexibility. This superbly designed family home offers a super-sized floor plan with multiple living areas, making it ideal for large or growing families, multi-generational living or anyone who simply wants more room. At the heart of it all is a newly renovated kitchen with quality stone benchtops, plenty of storage and excellent workspace, creating a true hub of the home where everyone can come together. Inside you'll find a generous front sitting room, a separate family room, a games room, a dedicated music room and even a library or reading room, along with a central meals area that flows off the kitchen. The master bedroom includes a walk-in robe and a modern ensuite with a sleek hobless shower, while the secondary bedrooms are all a good size with built-in robes and space for larger beds. There is also a handy central study or home office zone, perfect for working from home or kids' homework. Multiple air conditioners throughout help keep the home comfortable year-round. Outside, a large undercover alfresco area overlooks established, easy-care gardens, there is plenty of usable yard, a three-car garage with shopper's entry into the house and a rear shed that is ideal for extra storage or a small workshop. With its land size and layout, this property also offers attractive future development potential (r25/40) subject to council and WAPC approvals, so buyers are encouraged to make their own enquiries regarding zoning and options. The location is excellent, close to local shops, schools and nearby parks and playgrounds, and approximately 23km from the Perth CBD, making it convenient for both families and commuters. This is a rare opportunity to secure a big block, a big home and big potential in a great part of Kelmscott. For more information or to arrange your private appointment to view, call John or Joe today. Disclaimer: This information is provided for general information purposes only and is based on information provided by the Seller and may be subject to change. No warranty or representation is made as to its accuracy and interested parties should place no reliance on it and should make their own independent inquiries.
Location
Address
8 Dixie Road, Kelmscott WA 6111
City
Kelmscott
Features and Finishes
None
Legal Notice
Our comprehensive database is populated by our meticulous research and analysis of public data. MirrorRealEstate strives for accuracy and we make every effort to verify the information. However, MirrorRealEstate is not liable for the use or misuse of the site's information. The information displayed on MirrorRealEstate.com is for reference only.