8 Newton Crescent, Oak Flats NSW 2529
Property Details
3
2
House
Description
Property Details: • Type: House
• Bedrooms: 3 • Bathrooms: 2
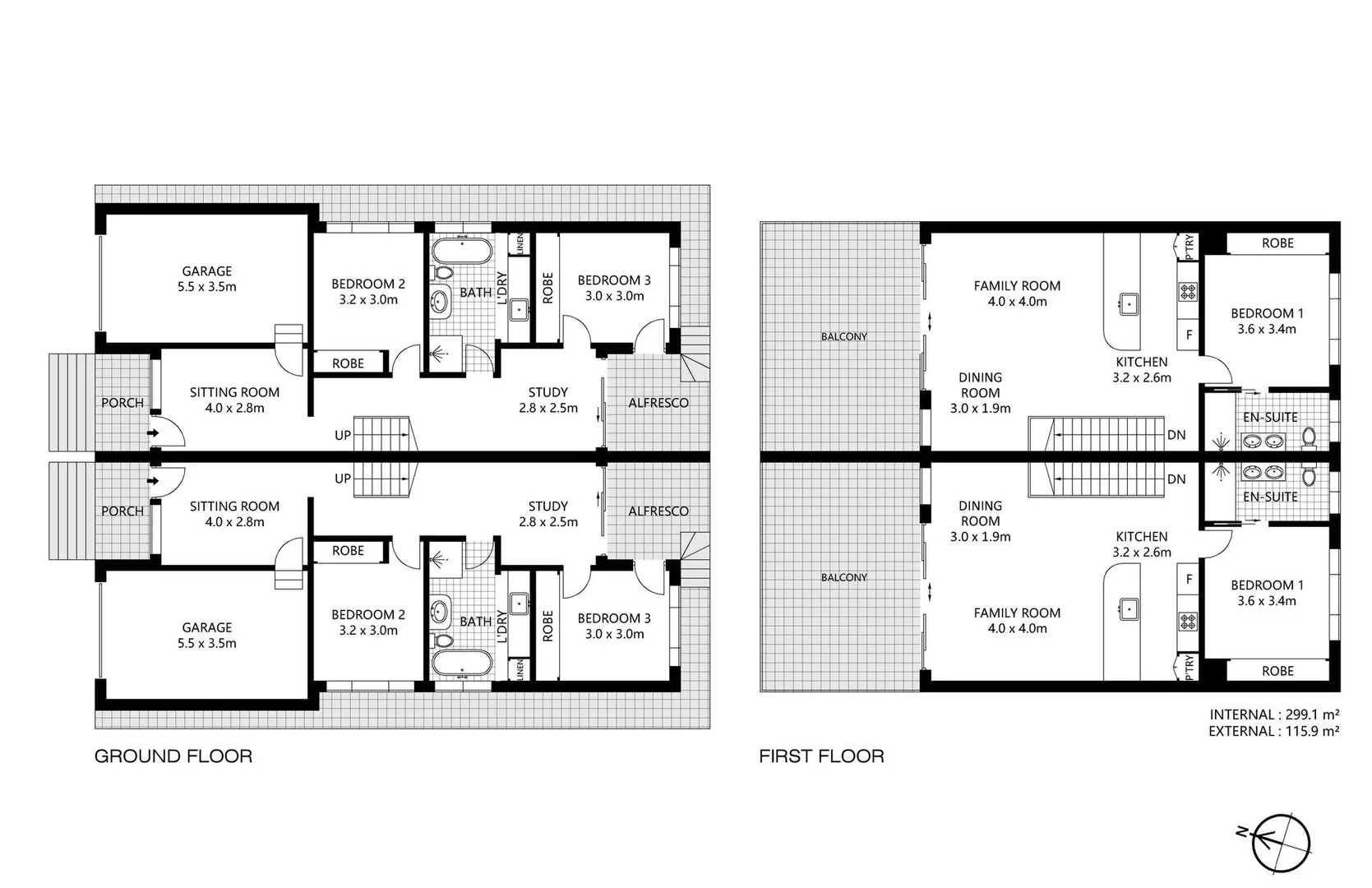
Description: *** DUE TO A HIGH DEMAND ON RENTALS, WE ENCOURAGE YOU TO APPLY IMMEDIATELY *** APPLY HERE - https://app.snug.com/apply/raywhiteshellharbourcity This beautifully designed 3 bedroom, 2 bathroom residence offers a perfect blend of comfort, style and convenience, making it an ideal choice for families or professionals seeking a serene lifestyle in the sought-after Oak Flats area. Enjoy the convenience of nearby schools, cafes, public transport and recreational facilities all within easy reach and short drive to pristine beaches, Shellharbour City Centres vibrant shopping precinct and much more. Property features include: * 3 good sized bedrooms with BIW's * Ensuite to main * Open plan dining, kitchen and lounge area * Stylish functional kitchen with dishwasher * Balcony with beautiful lake views * Sitting room and study downstairs * Bathroom with freestanding bath * Ducted air conditioning throughout * Single garage with internal acccess * Landscaped front yard and rear Alfreasco area.
Location
Address
8 Newton Crescent, Oak Flats NSW 2529
City
Oak Flats
Legal Notice
Our comprehensive database is populated by our meticulous research and analysis of public data. MirrorRealEstate strives for accuracy and we make every effort to verify the information. However, MirrorRealEstate is not liable for the use or misuse of the site's information. The information displayed on MirrorRealEstate.com is for reference only.