8 Taverner Street, Moorabbin VIC 3189
Property Details
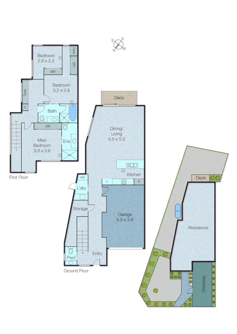
3
2
Townhouse
Description
Property Details: • Type: Townhouse
• Bedrooms: 3 • Bathrooms: 2
Description: This beautifully upgraded, light-filled residence offers a refined and low-maintenance lifestyle, perfect for those seeking comfort and quality in a premium setting. Showcasing elegant finishes throughout, the home features Tundra Grey marble in all wet areas, European Oak flooring, and plush wool carpets, creating a sophisticated and welcoming atmosphere. Designed with easy living in mind, the spacious layout includes a stylish open-plan living and entertaining zone, complemented by a well-appointed kitchen featuring Smeg appliances and a convenient Zip tap. The home offers three generous bedrooms along with a practical study area, ideal for working from home or additional living space. Further highlights include bespoke joinery, beautifully appointed bathrooms enhanced by natural light, heating and cooling throughout, added security features, and internal access to an automatic garage. Ideally located within walking distance to local shops and public transport, this home presents an exceptional rental opportunity in a highly sought-after area. PHOTO ID REQUIRED AT ALL OPEN HOMES. Please note: Ray White The Bayside Group has exclusive leasing rights to this property. We do not advertise on Gumtree, Facebook Marketplace, or any other social media platforms. Please be aware of scammers - 2Apply application codes and links will be provided upon physical inspection of the property only.
Location
Address
8 Taverner Street, Moorabbin VIC 3189
City
Moorabbin
Features and Finishes
None
Legal Notice
Our comprehensive database is populated by our meticulous research and analysis of public data. MirrorRealEstate strives for accuracy and we make every effort to verify the information. However, MirrorRealEstate is not liable for the use or misuse of the site's information. The information displayed on MirrorRealEstate.com is for reference only.