80 Walters Road, Blacktown NSW 2148
Property Details
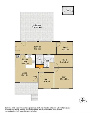
4
2
House
Description
Property Details: • Type: House
• Bedrooms: 4 • Bathrooms: 2
Description: Starr Partners Rousehill is proud to present this recently RENOVATED four bedroom and two living area family home. Featuring: - Polished timber floors throughout - Bathroom with bathtub - Large main bedroom with mirrored built in robe - Ceiling fans in 2 bedrooms - Split system A/C in lounge room - Kitchen with gas cooking - Large sunroom at rear of house - Laundry with second toilet shower - Large undercover entertainment area - Fully fenced yard - Located close to transport and shops Please apply via the link below www.tenancyapplication.com.au Disclaimer: "We have obtained all information in this document from sources we believe to be reliable; however, we cannot guarantee its accuracy. Prospective tenants are advised to carry out their own investigation."
Location
Address
80 Walters Road, Blacktown NSW 2148
City
Blacktown
Features and Finishes
None
Legal Notice
Our comprehensive database is populated by our meticulous research and analysis of public data. MirrorRealEstate strives for accuracy and we make every effort to verify the information. However, MirrorRealEstate is not liable for the use or misuse of the site's information. The information displayed on MirrorRealEstate.com is for reference only.