81 Bridgeman Street, Bolton, Greater Manchester, BL3 6BS

GBP 3750 For Sale

Property Details

Property Type

N/A

Description

Property Details: • Type: N/A • Tenure: N/A • Floor Area: N/A

Key Features: • Former trade counter unit • Located within a well established mixed use area • Secure gated yard area to side • 18 on site parking spaces • Would suit a variety of warehouse and trade counter uses • Prominent roadside location • Excellent transport links- close to A666 and M61 motorway network

Location: • Nearest Station: N/A • Distance to Station: N/A

Agent Information: • Address: 179 Chorley New Road Bolton BL1 4QZ

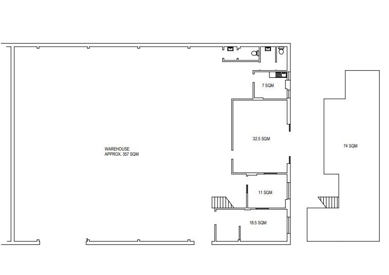
Full Description: The premises comprises a traditionally constructed steel portal frame unit with brick elevations beneath a pitched roof. Translucent roof lights are incorporated to enhance natural lighting and improve internal visibility.Internally, the property offers predominantly warehouse/workshop space, complemented by a customer-facing trade counter, ancillary office accommodation, and staff welfare facilities.A full-height electric roller shutter provides loading access to the side elevation, opening up into a secure gated yard space.In addition, a forecourt area to the front elevation provides for generous on-site car parking.

Location

Address

81 Bridgeman Street, Bolton, Greater Manchester, BL3 6BS

City

Bolton

Features and Finishes

Former trade counter unit, Located within a well established mixed use area, Secure gated yard area to side, 18 on site parking spaces, Would suit a variety of warehouse and trade counter uses, Prominent roadside location, Excellent transport links- close to A666 and M61 motorway network

Legal Notice

Our comprehensive database is populated by our meticulous research and analysis of public data. MirrorRealEstate strives for accuracy and we make every effort to verify the information. However, MirrorRealEstate is not liable for the use or misuse of the site's information. The information displayed on MirrorRealEstate.com is for reference only.

Real Estate Broker
Lamb & Swift Commercial, Bolton
Brokerage
Lamb & Swift Commercial, Bolton
Top Tags
Likes

0

Views

52

This website uses cookies to ensure you get the best experience. Learn more