85 Westgate Park Drive
Property Details
3
4
Vacant
Description
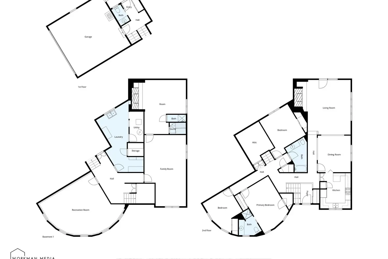
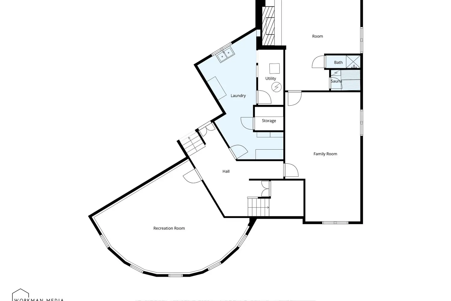
Discover an exceptional waterfront opportunity in the North end of St. Catharines, offering views of Lake Ontario and direct access to parkland. This custom-built home has been lovingly cared for by the same family since new and sits in one of St. Catharines' most desirable neighbourhoods. The property welcomes you with an expansive interlock driveway featuring two separate entrances and a convenient wraparound layout. Inside, the main floor offers approximately 2,000 sq ft of finished living space above grade. The main floor includes a convenient kitchen, formal dining room and a spacious family room highlighted by a wood-burning fireplace and large windows with lake views. Rich wood finishes and solid hardwood floors add warmth and character throughout. The upper level features three bedrooms with the primary having a private ensuite. Two additional bedrooms share a four-piece bath. A two-piece bathroom plus direct access to the oversized garage will also be found off the back hall. The lower level is accessible from both the front and rear of the home which offers exceptional flexibility. An oversized rec-room filled with natural light allows for endless possibilities. A second rec-room leads to a unique entertainment space with a sunken hot tub, full sauna with shower and secondary wood-burning fireplace which can be easily adaptable as a fourth bedroom. A large laundry room with ample storage completes this level. Outside the backyard is the true highlight, offering lake views and seamless access to the park behind. From here, enjoy a scenic walk along the waterfront trail straight into Port Dalhousie. With schools, coffee shops, grocery stores and the Niagara-on-the-Lake wine region just minutes away, is what makes this home's location the perfect fit. This rare opportunity offers the flexibility to move in and enjoy immediately or thoughtfully update to your personal style over time.
Location
Address
85 Westgate Park Drive
City
St. Catharines
Features and Finishes
None
Legal Notice
Our comprehensive database is populated by our meticulous research and analysis of public data. MirrorRealEstate strives for accuracy and we make every effort to verify the information. However, MirrorRealEstate is not liable for the use or misuse of the site's information. The information displayed on MirrorRealEstate.com is for reference only.