8A Bowstring Place, Joondalup WA 6027
Property Details
Vacant Land
Description
Property Details: • Type: Vacant Land
• Bedrooms: 0 • Bathrooms: 0
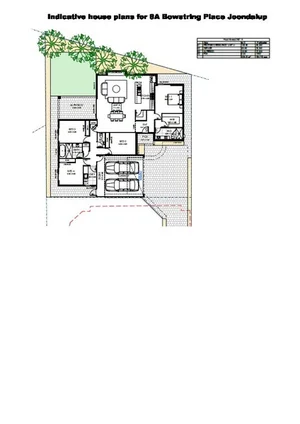
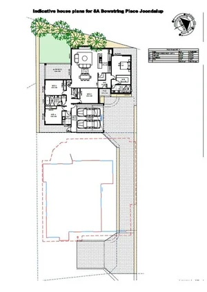
Description: Offers close 3/2/2026 12 Noon: Set within the leafy, well-connected suburb of Joondalup, this extremely generous rear block offers an impressive 460sqm plus a 98sqm common driveway - the perfect foundation for those seeking space, privacy and an unbeatable location to build their dream home. Tucked away at the end of a quiet cul-de-sac, this private block provides plenty of room for that ideal 4x2 design and more. A true blank canvas, opportunities like this in such a prime location are as rare as hen's teeth. Surrounded by established homes, mature trees and beautiful parks, this sought-after pocket of Joondalup offers an exceptional lifestyle. Candlewood Shopping Centre is just a short three-minute walk away, while the rear position of the block invites natural light, privacy and a sense of calm within this delightful streetscape. Fully serviced and ready to build, the block comes with underground power, sewer and water already in place, along with quality fencing - the hard work is done. Now comes the exciting part: designing a home that truly reflects your lifestyle. Whether it's a study, theatre room, alfresco entertaining, balcony or double garage, there's room here to bring your vision to life. Enjoy the convenience of being within walking distance to medical facilities, local shops, schools and public transport. Joondalup's restaurants, cinemas, train station, major shopping precinct, Health Campus, TAFE and ECU are all just a short drive away. Lake Joondalup Baptist College, HBF Arena and Joondalup Primary School are also close by, with beautiful beaches only eight minutes from your doorstep. This block promises something truly special - more than just land, it's an opportunity to create a relaxed lifestyle in one of Joondalup's most desirable locations. Build up, look out and dare to dream. Features include: Vacant 460sqm (approx.) block plus additional 98sqm driveway Fully fenced, serviced and ready to build Quiet, private rear block in a premium location Walking distance to shops, schools and amenities Only 8 minutes to stunning beaches Final titles anticipated for delivery mid February 2026 All offers presented at Noon on 3 February 2026, unless sold prior. Contact Stella McLean for more details .
Location
Address
8A Bowstring Place, Joondalup WA 6027
City
Joondalup
Features and Finishes
None
Legal Notice
Our comprehensive database is populated by our meticulous research and analysis of public data. MirrorRealEstate strives for accuracy and we make every effort to verify the information. However, MirrorRealEstate is not liable for the use or misuse of the site's information. The information displayed on MirrorRealEstate.com is for reference only.