9-11 Nevill Road , Rottingdean, BN2 7HH

GBP 2375 For Rent

Property Details

Property Type

3,057 sq ft

Description

Property Details: • Type: 3,057 sq ft • Tenure: N/A • Floor Area: N/A

Key Features: • Rare opportunity in the centre of Rottingdean • Industrial premises with ancillary office space • Suitable for a variety of uses (STP) • Extensive car parking • Front and rear road access • Property has been owner occupied for 40 years • Potential to reconfigure premises internally

Location: • Nearest Station: Moulsecoomb Station • Distance to Station: 3.9 miles

Agent Information: • Address: Lees House, 21-33 Dyke Road, Brighton BN1 3FE

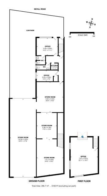
Full Description: The available accommodation is arranged over ground and mezzanine level and comprises offices with ancillary storage, staff facilities and a large warehouse. The property is accessed via Nevill Road and has a secondary access off Park Crescent. Externally, the property benefits from a forecourt yard providing car parking for upto 10 cars.Rare opportunity in the centre of RottingdeanIndustrial premises with ancillary office spaceSuitable for a variety of uses (STP)Extensive car parking Front and rear road accessProperty has been owner occupied for 40 yearsPotential to reconfigure premises internally

Location

Address

9-11 Nevill Road , Rottingdean, BN2 7HH

City

Rottingdean

Features and Finishes

Rare opportunity in the centre of Rottingdean, Industrial premises with ancillary office space, Suitable for a variety of uses (STP), Extensive car parking, Front and rear road access, Property has been owner occupied for 40 years, Potential to reconfigure premises internally

Legal Notice

Our comprehensive database is populated by our meticulous research and analysis of public data. MirrorRealEstate strives for accuracy and we make every effort to verify the information. However, MirrorRealEstate is not liable for the use or misuse of the site's information. The information displayed on MirrorRealEstate.com is for reference only.

Real Estate Broker
SHW, Brighton
Brokerage
SHW, Brighton
Top Tags
Likes

0

Views

51

This website uses cookies to ensure you get the best experience. Learn more