9 Duregon Street, Stirling North SA 5710
Property Details
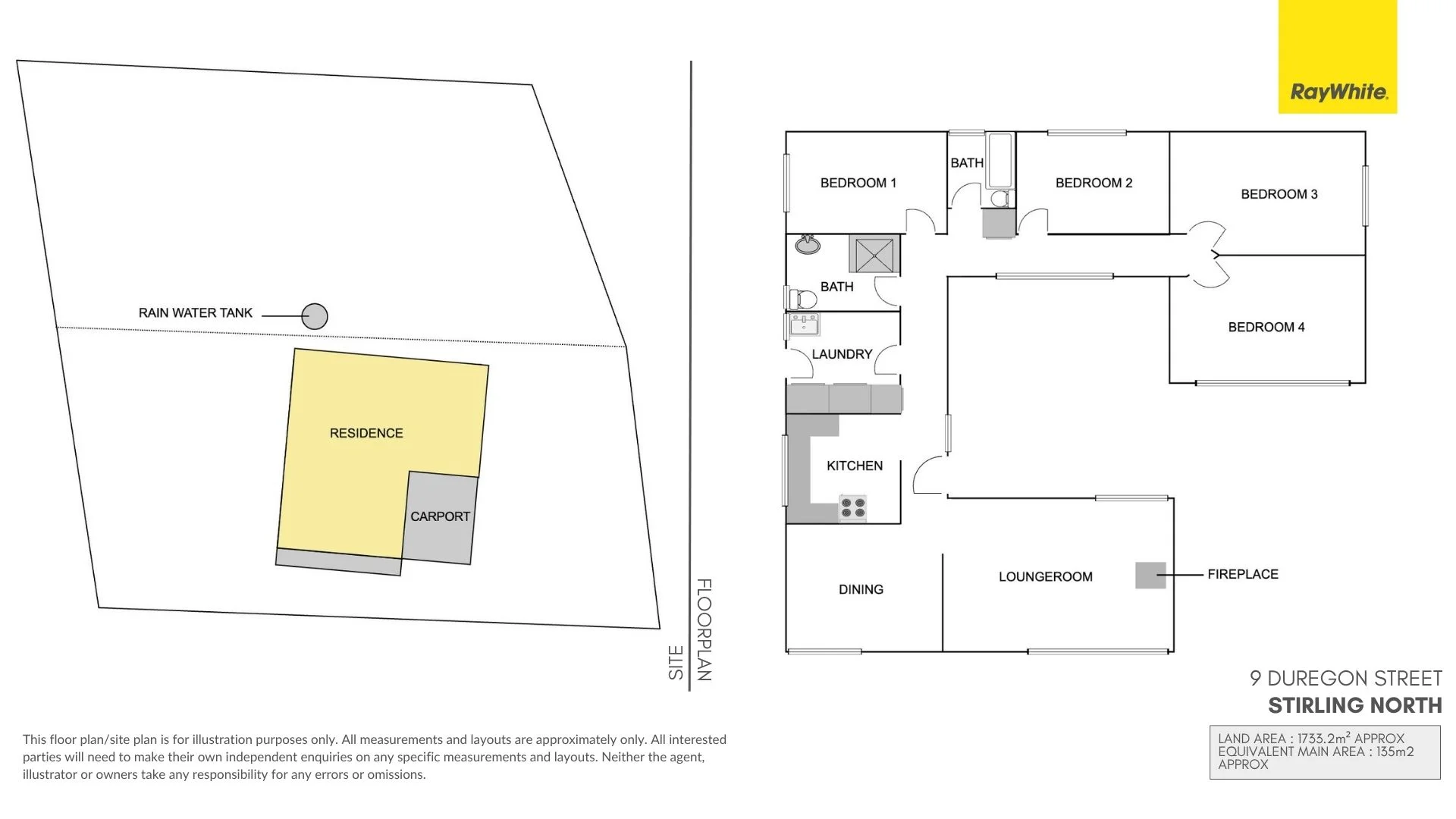
4
2
House
Description
Property Details: • Type: House
• Bedrooms: 4 • Bathrooms: 2
Description: Tucked away in a quiet neighbourhood in Stirling North, 9 Duregon Street, is a blank canvas that is filled with potential. This property is perfect for renovators and investors who are ready to take on a project and unlock the full potential of the home. The generous floor plan offers solid bones, featuring a spacious open plan living and dining area filled with natural light thanks to an abundance of large windows. The kitchen is clean and practical, with a large window looking out to the backyard. There are four large bedrooms, all well sized and full of natural light, offering plenty of room for family, guests, or flexible use. Two bathrooms provide added convenience for busy households. Outside, the property features a single carport and a shaded entertaining area, the ideal space for relaxing outdoors or hosting friends and family. Set on one generous allotment with two separate titles, this property presents a rare opportunity with added flexibility for future development (STCC). Whether you're looking to renovate, invest, or explore the potential of dual titles, 9 Duregon Street is the perfect place to start! Rent appraisal available upon request. Land: 1733.2 m2 (Approx.) Year Built: 1955 Equivalent main area: 135m2 (Approx.) Zoning: N - Neighbourhood Easements: NO Water available: YES Sewer available: NO Council Rates: $2,957.20 Per Annum (2025/26) Disclaimer: We have obtained all information in this document from sources we believe to be reliable; however, we cannot guarantee its accuracy, and no warranty or representative is given or made as to the correctness of information supplied and neither the owners nor their agent can accept responsibility for error or omissions. Prospective purchasers are advised to carry out their own investigations. All inclusions and exclusions must be confirmed in the Contract of Sale. If a land size is quoted it is an approximation only. You must make your own enquiries as to this figure's accuracy. We do not guarantee the accuracy of these measurements. All development enquiries and site requirements should be directed to the local govt. authority.
Location
Address
9 Duregon Street, Stirling North SA 5710
City
Stirling North
Features and Finishes
None
Legal Notice
Our comprehensive database is populated by our meticulous research and analysis of public data. MirrorRealEstate strives for accuracy and we make every effort to verify the information. However, MirrorRealEstate is not liable for the use or misuse of the site's information. The information displayed on MirrorRealEstate.com is for reference only.