9 Kalbarri Street, Banya QLD 4551
Property Details
4
2
House
Description
Property Details: • Type: House
• Bedrooms: 4 • Bathrooms: 2
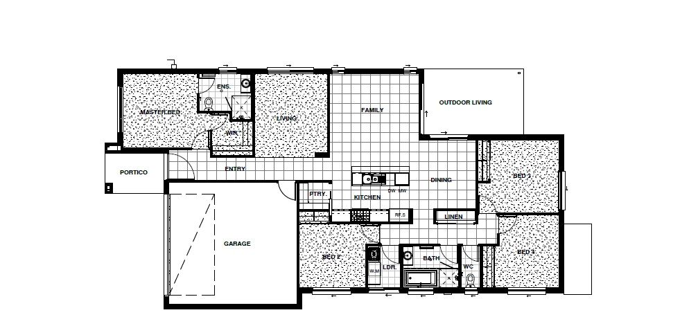
Description: This stunning home offers the perfect blend of style, space, and functionality, making it ideal for families or those who love to entertain. Property Features Four bedrooms, two bathrooms, and a garage. The master bedroom has an ensuite bathroom and a walk-in robe. Separate laundry room Modern open-plan living: The kitchen, dining room, and family room seamlessly flow together, creating a perfect space for gatherings and everyday living. Outdoor living area Double garage with a remote control door. The kitchen has a dishwasher, oven, and microwave provisions. The main bathroom has a shower and a bathtub. The laundry room has a washing machine provision. There is a linen closet located near the laundry room. Situated in Banya, this property is conveniently located near schools, shopping centres, and all the amenities you need for a comfortable and convenient lifestyle. HOW TO BOOK AN INSPECTION If you are browsing this property on realestate.com, please scroll down to "INSPECTIONS" and click "REQUEST A TIME". A pop up will appear, select date and times from the drop-down boxes and fill out your details. Once completed, you will receive a confirmation email from us. If you are not viewing this via realestate.com, please go to our agency website http://www.codepg.com.au and click "RENTALS" , find the property you would like to view and click 'BOOK INSPECTION" and fill out your details. Once completed you will receive a confirmation email from us. If there are no inspections available or the time slots are not suitable, please email [email protected] with your preferred date and time. Code Property Group accepts applications prior to you inspecting the property. HOW TO APPLY FOR THIS HOME: 1. Please click the link http://www.codepg.com.au 2. Find the property of interest to you 3. Click the "APPLY NOW" button 4. Please fill in where indicated and follow the prompts Please note anyone over the age of 18 that will be residing in the property, will be required to complete an application. TO APPLY VIA VIRTUAL OPEN HOME: 1. Click and view the Video Tour above. If you cannot locate a video walk through, relax, there is one on its way. AVAILABLE DATE: 24/4/26 PREFERRED LEASE TERM: 12 Months Pets will be considered on application Tenants maintain gardens and grounds Tenants to pay gas supply and hire Tenants connect and pay power direct This property is water compliant tenants will be charged for all water consumption Tenants are liable to check/confirm active & acceptable internet connection at the property PRIOR to applying DISCLAIMER: The information regarding this property has been obtained directly from the owner, as such, Code Property Group does not guarantee or warrant the accuracy of such information. Interested parties should conduct independent research and due diligence to verify the accuracy of the information provided. Code Property Group takes no responsibility for any errors or omissions and cannot be held accountable for any loss or damages incurred by any party as a result of the information provided.
Location
Address
9 Kalbarri Street, Banya QLD 4551
City
Banya
Features and Finishes
None
Legal Notice
Our comprehensive database is populated by our meticulous research and analysis of public data. MirrorRealEstate strives for accuracy and we make every effort to verify the information. However, MirrorRealEstate is not liable for the use or misuse of the site's information. The information displayed on MirrorRealEstate.com is for reference only.