300 Diana St, Perris, CA 92570
Property Details
2
None
None
None
Description
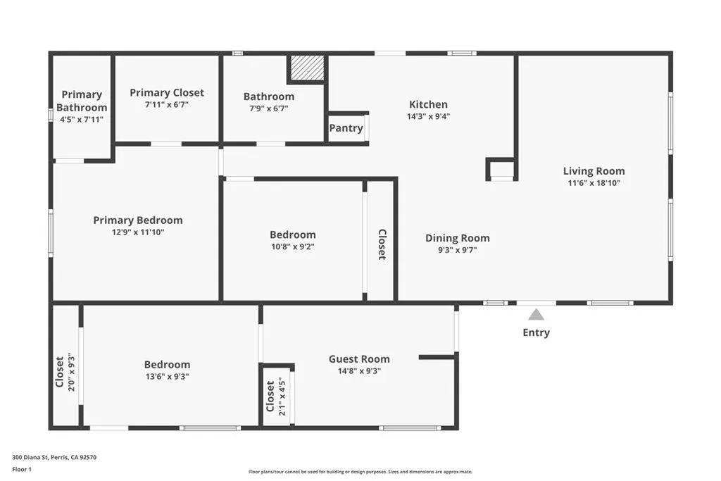
No FHA offer until January 7th 2026. This 2 bedroom 2 bath has just been completely updated, upgraded, with a new HVAC system, new paint inside and out. New flooring. Beautiful kitchen with updated Bathrooms makes this a great property to move right in. 2 Bedrooms have been added on in a configuration that lends it self to many uses including craft and hobby rooms. Check out the floor plan. Located 4 doors down from a local park Enchanted Hills Community Park, over 11 acres of amenities including a new multi-use open grass field and all-inclusive playground. Additionally, the park is complete with a water splash pad, two full-size basketball courts with lighting, concrete walkways with lighting, plazas, BMX and mountain bike tracks, hiking trails, skate spot, zip line, an adventure course with exercise equipment, group picnic shelters, a restroom facility, a rock garden mural, and parking with lighting and landscaping throughout the park.
PROPERTY DETAILS: Square Feet: 1152 | Bathrooms: 2
INTERIOR FEATURES: • Cooling: Central Air • Heating: Central • Common Walls: No Common Walls • Fireplaces: None
EXTERIOR FEATURES: • Pool Description: None • Lot View: Other, City
LISTING AGENT: Agent: Joshua Summers | Office: Real Estate eBroker | Phone: 9512650934 | Email: [email protected]
LISTING INFORMATION: MLS#: SW25264248 | Status: Pending
Location
Address
300 Diana St
City
Perris
Features and Finishes
Interior Features:
• Cooling: Central Air
• Heating: Central
• Common Walls: No Common Walls
• Fireplaces: None
Exterior Features:
• Pool Description: None
• Lot View: Other, City
Legal Notice
Our comprehensive database is populated by our meticulous research and analysis of public data. MirrorRealEstate strives for accuracy and we make every effort to verify the information. However, MirrorRealEstate is not liable for the use or misuse of the site's information. The information displayed on MirrorRealEstate.com is for reference only.