957 Christchurch Road, Bournemouth, Dorset

GBP 792 For Rent

Property Details

Property Type

857 sq ft

Description

Property Details: • Type: 857 sq ft • Tenure: N/A • Floor Area: N/A

Key Features: • Located at the top of Pokesdown Hill opposite Tesco Express • Ideal for a range of uses • To be refurbished before letting is complete.

Location: • Nearest Station: Pokesdown Station • Distance to Station: 0.1 miles

Agent Information: • Address: Old Library House, 4 Dean Park Cresent, Bournemouth, BH1 1LY

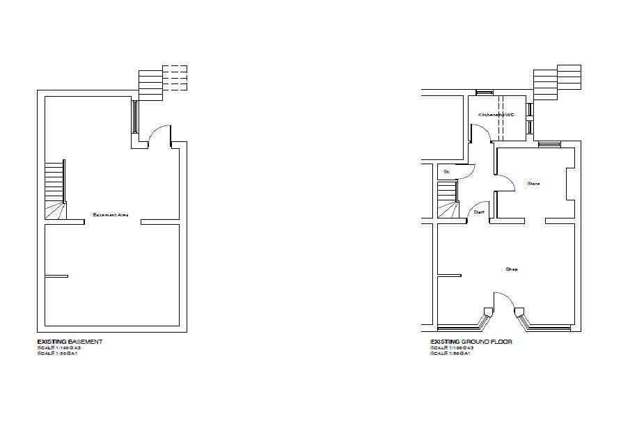
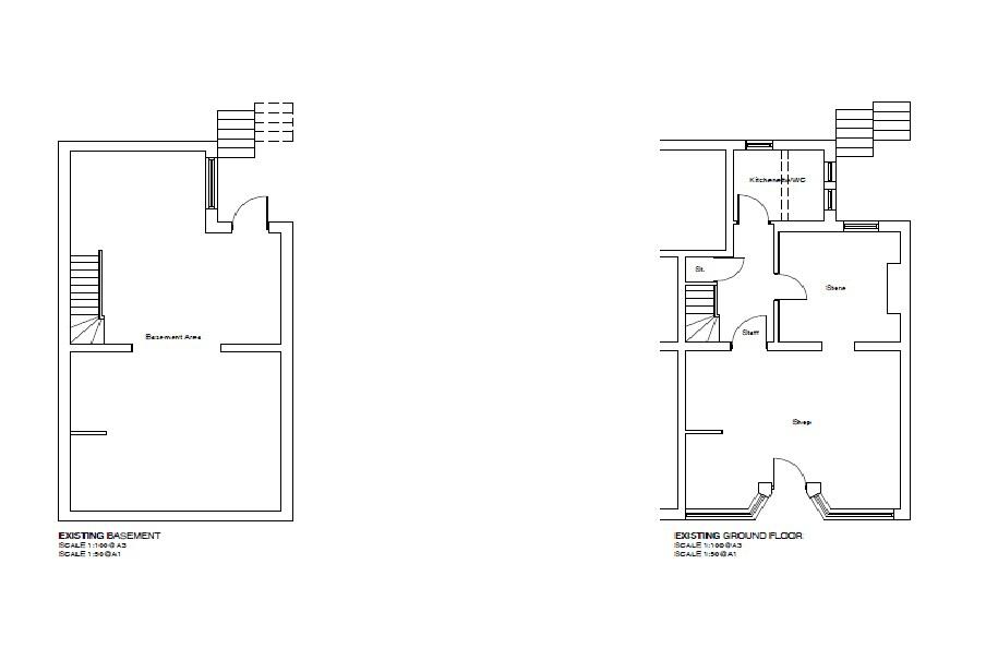
Full Description: Situation and DescriptionThe property is located at the top of Pokesdown Hill fronting the busy A35 christchurch road. The property is located opposite the Tesco Express and near to Pokesdown Railway station and the traffic light junction where Christchurch road and Seabourne Road meet.The accommodation comprises a double fronted lock up shop with a substantial basement that offers dry and useable storage. PlanningLong established Class A1 retail useThis property falls within Class E Commercial Businesses and Services, which include A1 retail, A2 office, A3 Catering, B1 Light Industrial, Indoor sports and Medical use, crèche/day nurseryLegal FeesEach party will be responsible for their own legal fees.EPCTBCAccommodation TextGround floor:Width 16'10" (5.1m)Depth 16'04" (4.9m)Sales area 272 sq.ft. (25.3 sq.m.) ApproxAncillary Office 110 sqft (10.2 sq.m.) Approx.Cloakroom Basement:Floor area 475 sq,ft (44.1 sq.m.) Approx 7'09" ceiling heightOutside:Forecourt in front of the shop The accommodation is due to the renovated by the landlord prior to an incoming tenant taking occupationLocated at the top of Pokesdown Hill opposite Tesco ExpressIdeal for a range of usesTo be refurbished before letting is complete.Tenure CommentsAvailable on a new lease with terms to be negotiated at a rental of £9,500 per annum.Ellis and Partners can prepare, in house, a new tenancy agreement for a term of up to six years at a cost of £600 plus VAT to the incoming tenant.The incoming tenant would be required to pay a 3 month rent depositLock up Shop / Office TO LET

Location

Address

957 Christchurch Road, Bournemouth, Dorset

City

Bournemouth

Features and Finishes

Located at the top of Pokesdown Hill opposite Tesco Express, Ideal for a range of uses, To be refurbished before letting is complete.

Legal Notice

Our comprehensive database is populated by our meticulous research and analysis of public data. MirrorRealEstate strives for accuracy and we make every effort to verify the information. However, MirrorRealEstate is not liable for the use or misuse of the site's information. The information displayed on MirrorRealEstate.com is for reference only.

Real Estate Broker
Ellis and Partners Limited, Bournemouth
Brokerage
Ellis and Partners Limited, Bournemouth
Top Tags
Likes

0

Views

61

This website uses cookies to ensure you get the best experience. Learn more