96 Leeds Street, Doncaster East VIC 3109
Property Details
4
3
House
Description
Property Details: • Type: House
• Bedrooms: 4 • Bathrooms: 3
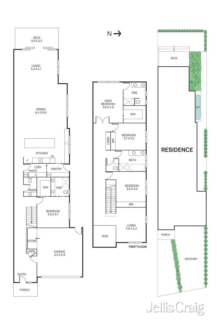
Description: Expressions of Interest Closing Wednesday 8th April at 5pm Showcasing unrivalled contemporary luxury in a coveted family neighbourhood, this brand-new residence boasts opulent designer finishes across two expansive levels. The impressive home offers two distinct living areas, a stunning Miele-equipped stone kitchen, and lavish ensuite master bedrooms on both the ground and upper floors. Superbly conceived for harmonious multi-generational living, and constructed to the highest standard with quality imported fixtures throughout, the home delivers an enviable lifestyle opportunity in a prized location. Nestled within a peaceful family pocket just steps from buses to Westfield Doncaster, and a short stroll from Beverley Hills Primary School, the home is also in easy walking distance of leafy Boronia Grove Reserve, Koonung Creek Trail, Doncaster Reserve, and Jackson Court shops and restaurants. Zoned for Blackburn High School, the location is also moments from the Eastern Freeway for direct city and peninsula access. Elevated on the high side of the street amidst manicured landscaped gardens, the home showcases elegant wide engineered flooring throughout and welcomes guests into a grand double-height entry foyer. An expansive open plan living and dining area with custom inbuilt joinery and a statement fireplace flows seamlessly out to a sundrenched deck and private garden, creating an inviting retreat for relaxed outdoor family living and entertaining. The magnificent showpiece kitchen comprises extra-thick stone waterfall benchtops and full-height splashbacks, an oversized island breakfast bar with chic pendant lighting, extensive premium soft-close Hafele cabinetry, an airy walk-in pantry, and a full suite of premium Miele appliances including a fully-integrated dishwasher, two electric ovens, and a 900mm induction cooktop. Conveniently positioned on the ground floor, a master bedroom offers a fully-fitted walk-in wardrobe and a lavish fully-tiled ensuite with a twin stone vanity, LED mirrors, and a large frameless glass rainfall shower. The main floor also includes a fully-tiled stone guest powder room, and a pristine stone laundry. A sleek open tread staircase ascends to the upper level, where a spacious retreat living area captures a sweeping panoramic vista towards the distant mountains. A second master bedroom is set on the upper level, equipped with an identical walk-in wardrobe and luxe ensuite to the downstairs master. The upper level also includes two light-filled additional bedrooms with full-height built-in wardrobes, complemented by a spacious fully-tiled central bathroom with a frameless glass rainfall shower, a twin stone vanity, an indulgent semi-freestanding soaker bathtub, and a convenient separate toilet. Double glazed throughout for superior climate comfort, the home features Daikin ducted refrigerated air conditioning and heating, quality drapery, LED downlights, recessed cistern Geberit toilets, video intercom, secure keyless entry, and a remote double lock-up garage with internal entry, plus space for additional off-street parking. Disclaimer: The information contained herein has been supplied to us and is to be used as a guide only. No information in this report is to be relied on for financial or legal purposes. Although every care has been taken in the preparation of the above information, we stress that particulars herein are for information only and do not constitute representation by the Owners or Agent.
Location
Address
96 Leeds Street, Doncaster East VIC 3109
City
Doncaster East
Features and Finishes
None
Legal Notice
Our comprehensive database is populated by our meticulous research and analysis of public data. MirrorRealEstate strives for accuracy and we make every effort to verify the information. However, MirrorRealEstate is not liable for the use or misuse of the site's information. The information displayed on MirrorRealEstate.com is for reference only.