A303, West Camel, Yeovil, BA22
Property Details
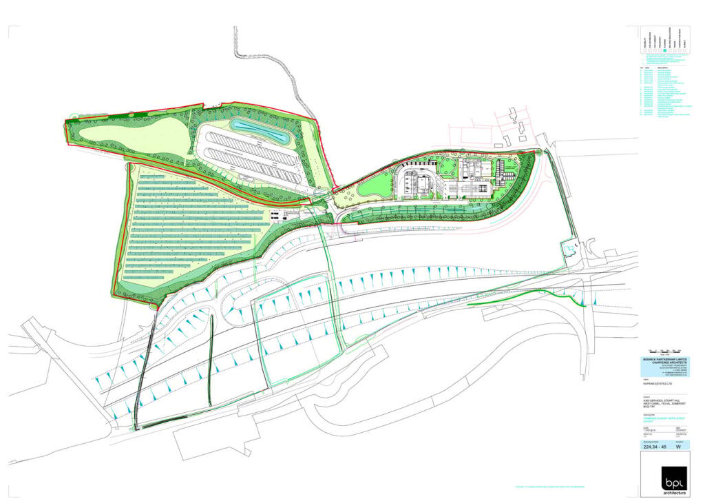
Commercial Development
Description
Property Details: • Type: Commercial Development • Tenure: N/A • Floor Area: N/A
Key Features: • New A303 Roadside Service Area • Planning Submitted June 2024 • Energy/Petrol Filling Station • Retail • Hotel • Extensive EV Charging • Adjacent Solar Farm • Truck Stop • Follows the New Dualling of the A303 by Sparkford
Location: • Nearest Station: Yeovil Pen Mill Station • Distance to Station: 5.6 miles
Agent Information: • Address: 23 Wallingford Street, Wantage, OX12 8AX
Full Description: NEW A303 SERVICE AREA, between Sparkford and Podimore, Yeovil, Somerset BA22 7RH (Red Land)Interest invited for all ROADSIDE USES including: FOOD, RETAIL, HOTEL, PFS and EV ChargingA detailed planning application (Ref 24/00841/FUL) was submitted June 2024 for "the development of a new Trunk Road Service Area incorporating a farm shop and restaurant/cafe, hotel/lodge accommodation, energy station (including electric vehicle energy hub and petrol filling station), photovoltaic solar arrays, truck stop, strategic landscaping and other ancillary works."This application refers to the red land on the attached images which will include a substantial solar farm.There is immediate access off the newly upgraded A303 East Bound CarriagewayAccess from the West Bound Carriageway is available via a short section of local road (about 1,200m)The blue land is an additional site under the same ownership which also has potential for road side uses.Occupier and Operator interest is invited.Ed Preece MRICS Brett Artus MRICS
Location
Address
A303, West Camel, Yeovil, BA22
City
None
Features and Finishes
New A303 Roadside Service Area, Planning Submitted June 2024, Energy/Petrol Filling Station, Retail, Hotel, Extensive EV Charging, Adjacent Solar Farm, Truck Stop, Follows the New Dualling of the A303 by Sparkford
Legal Notice
Our comprehensive database is populated by our meticulous research and analysis of public data. MirrorRealEstate strives for accuracy and we make every effort to verify the information. However, MirrorRealEstate is not liable for the use or misuse of the site's information. The information displayed on MirrorRealEstate.com is for reference only.