Akenfield Close, South Woodham Ferrers, Chelmsford
Property Details
1
Studio
Description
Property Details: • Type: Studio • Tenure: N/A • Floor Area: N/A
Key Features: • Immaculately presented • Ground floor studio apartment • Ideal first time purchase or buy to let • Offering spacious accommodation • Kitchen • Open plan lounge/bedroom • Shower room • Allocated parking / Communal garden • Viewing advised • EPC Rating: D / Our Ref: 19783
Location: • Nearest Station: N/A • Distance to Station: N/A
Agent Information: • Address: 1 Woodlands Parade Main Road Hockley SS5 4QU
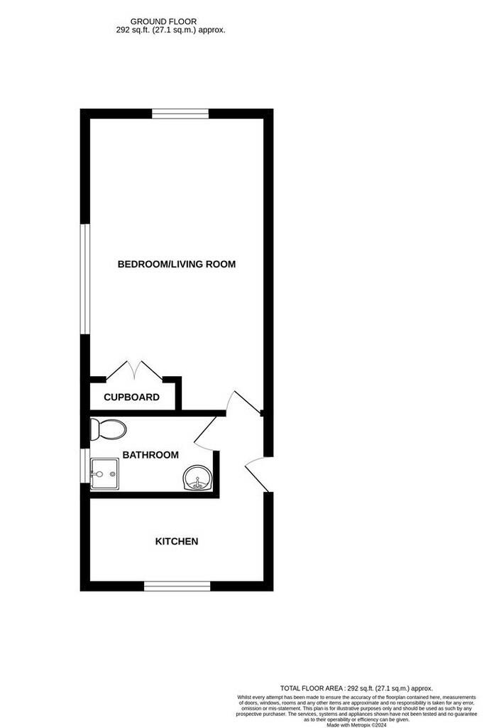
Full Description: GUIDE PRICE: £100,000 - £125,000OFFERED WITH NO ONWARD CHAINSituated in a sought after development is this immaculately presented ground floor studio apartment ideal for a first time purchase or buy to let investment. Offering spacious accommodation with own plan bedroom and living area. Conveniently located for local shops, schools and all amenities. Council Tax Band: A. EPC Rating: D. Viewing advised. Our Ref: 19783. Accommodation comprises:Entrance via communal entrance door to communal entrance hall. Personal door to property. ENTRANCE HALL Wood effect flooring. KITCHEN 10' 8" x 5' 10" (3.25m x 1.78m) Double glazed window to rear aspect. A range of base and eye level units incorporating roll top work surface with inset sink drainer unit. Four ring induction hob and electric oven. Space for fridge freezer. Space and plumbing for washing machine. Wood flooring. Coving to plastered ceiling. BATHROOM Obscure double glazed window to side aspect. A three piece suite comprising walk in shower cubicle with rainfall shower head, pedestal wash hand basin and back to wall wc. Tiled flooring. Part tiled walls. Coving to plastered ceiling. LOUNGE/BEDROOM 15' 1" x 10' 7" (4.6m x 3.23m) Double glazed window to front and side aspects. Coving to plastered ceiling. EXTERIOR. The property has a private car park with allocated parking to the front. Communal garden.Agents Note:Lease : 73 yearsService Charge : £1,100 per annumGround Rent : £82.50 half yearlyManaging Agent : Abbeystone. BrochuresBrochure PDF
Location
Address
Akenfield Close, South Woodham Ferrers, Chelmsford
City
South Woodham Ferrers
Features and Finishes
Immaculately presented, Ground floor studio apartment, Ideal first time purchase or buy to let, Offering spacious accommodation, Kitchen, Open plan lounge/bedroom, Shower room, Allocated parking / Communal garden, Viewing advised, EPC Rating: D / Our Ref: 19783
Legal Notice
Our comprehensive database is populated by our meticulous research and analysis of public data. MirrorRealEstate strives for accuracy and we make every effort to verify the information. However, MirrorRealEstate is not liable for the use or misuse of the site's information. The information displayed on MirrorRealEstate.com is for reference only.