Akersloot Place, West Mersea

GBP 140000 For Sale

Property Details

Property Type

Plot

Description

Property Details: • Type: Plot • Tenure: N/A • Floor Area: N/A

Key Features:

Location: • Nearest Station: Wivenhoe Station • Distance to Station: 5.7 miles

Agent Information: • Address: 34a Barfield Road, West Mersea, CO5 8QT

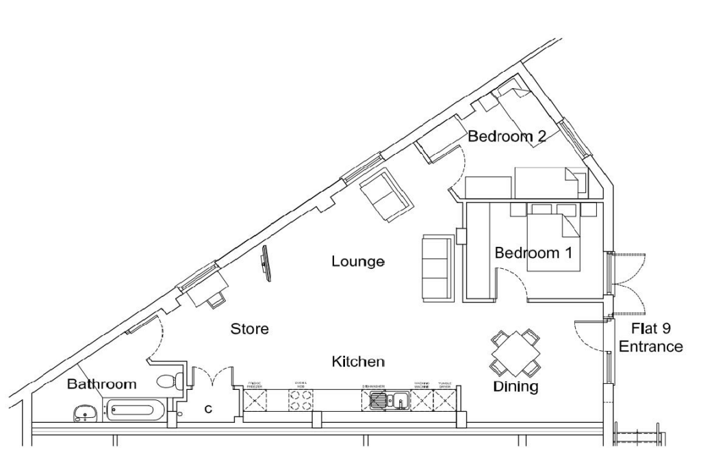
Full Description: Guide Price £140,000 to £160,000. Located within the centre of the village - A rare opportunity to purchase this ground floor structure in Akersloot Place which has planning permission (Application No 181377) for a spacious (890 square feet) ground floor apartment offering two bedrooms, lounge open plan to kitchen and dining area , & bathroom , with an allocated parking space. Emailed plans available upon request.Development Plot - See Floor planBrochuresAkersloot Place, West Mersea

Location

Address

Akersloot Place, West Mersea

City

West Mersea

Legal Notice

Our comprehensive database is populated by our meticulous research and analysis of public data. MirrorRealEstate strives for accuracy and we make every effort to verify the information. However, MirrorRealEstate is not liable for the use or misuse of the site's information. The information displayed on MirrorRealEstate.com is for reference only.

Real Estate Broker
Oakheart Property, Mersea Island, covering Tiptree & Rowhedge
Brokerage
Oakheart Property, Mersea Island, covering Tiptree & Rowhedge
Top Tags
two bedrooms Akersloot Place West Mersea Guide Price £140
Likes

0

Views

76

This website uses cookies to ensure you get the best experience. Learn more