Albert Street, Dalbeattie, DG5

GBP 75000 For Sale

Property Details

Property Type

Land

Description

Property Details: • Type: Land • Tenure: N/A • Floor Area: N/A

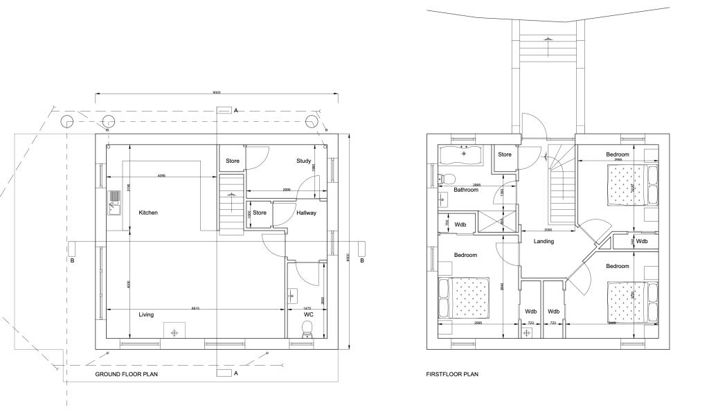
Key Features: • Building Plot • Full Planning Permission Valid to 2026 • Detached Two Storey House • Three/Four Bedrooms • Energy Efficient Design • Vehicular Access to Rear & Pedestrian Access to Front • Driveway Parking for Two Cars • Private Enclosed Gardens • Quiet Residential Street • Within Walking Distance of Learning Campus, High St & Health Centre

Location: • Nearest Station: Dumfries Station • Distance to Station: 12.9 miles

Agent Information: • Address: Meridian House Wheatfield Way Hinckley LE10 1YG

Full Description: PLANNING REF 23/2383/FUL A great opportunity to self-build a detached two storey family home on a plot of land located on Albert St, Dalbeattie to the front and Mews Lane to the rear. With approved planning granted in March 2023 lasting for 3 years, this is a fantastic development opportunity in a prime location with close transport links readily available. There also may be an option to revise the approved design subject to planning consent. * Further information is available upon viewing. All enquiries to our sales team at our local Dumfries Office * This rarely available plot presents a great opportunity and is within close proximity to the local award-winning, all-through Learning Campus providing education for 3-18 year olds, schools, and amenities including the modern Craignair Health Centre as well as the retail and leisure facilities in and around Dalbeattie High St. nd High StPeel Centre retail park and is a short walk from Dumfries town centre. This opportunity is ideally suited to developers and is a wonderful prospect for anyone looking to build their own detached home on a site that is ideally placed. TRANSPORT, SCHOOLS & AMENITIESThe nearest school is the award winning Dalbeattie Learning Campus. Opened in 2018, it offers all-through education comprising nursery, primary, and secondary education set in an innovative, landscaped well-maintained site, incorporating the latest in environmentally friendly energy consumption and community facilities.Dalbeattie itself has a variety of shops, supermarkets, cafes, pubs, restaurants and hotels including the Granite Kitchen, Birchtree and Kings Arms Hotels and many more. There is also a large modern Health Centre, pharmacy, garden centre, library, cinema, Post Office and Town Hall available for community use.The surrounding area offers a wide range of country pursuits including sailing, horse riding, mountain and e-biking (famous 7stanes Mountain Bike Trail in Dalbeattie Forest), fishing, bird watching and numerous coastal and woodland walks.The Solway Coast’s popular sailing village of Kippford can be found only 6 or so miles away with the sandy beaches of Rockcliffe, Sandyhills and Southerness just a few more minutes away. The town makes an ideal base for exploring the Colvend Coast and the region's castles and gardens. The Solway coast is a popular holiday destination with the villages of Sandyhills, Colvend, Rockcliffe and Kippford in close proximity. Colvend has a village shop, cafe, primary school and village hall. Kippford has two small hotels, craft shop, RNLI station and the Solway Yacht club.Around Dalbeattie, there are plenty of country walks and great opportunities for golfing.The M74 provides transport links to the north and south and is approximately 20 miles to the east. Dumfries town centre situated on the picturesque River Nith is attractive and reached within a 15-20 minute drive and offers a combination of good shopping facilities and historic buildings. The town is also the home of a substantial college and university campus located within beautiful grounds overlooking the town and has three golf courses. There are various close transport links including Dumfries train station providing links to Carlisle and Glasgow. Major Bus links can be accessed from the Loreburn Centre, Whitesands or Burns Statue. The M6 and M74 networks are accessible at Moffat, Gretna and Lockerbie. Dumfries town centre offers several major supermarkets, popular High Street shops, shopping centre, schooling, university campus, a range of bistros and medical facilities. A brand new state of the art regional hospital is only minutes' drive away.DisclaimerWhilst we make enquiries with the Seller to ensure the information provided is accurate, Yopa makes no representations or warranties of any kind with respect to the statements contained in the particulars which should not be relied upon as representations of fact. All representations contained in the particulars are based on details supplied by the Seller. Your Conveyancer is legally responsible for ensuring any purchase agreement fully protects your position. Please inform us if you become aware of any information being inaccurate.

Location

Address

Albert Street, Dalbeattie, DG5

City

Dalbeattie

Features and Finishes

Building Plot, Full Planning Permission Valid to 2026, Detached Two Storey House, Three/Four Bedrooms, Energy Efficient Design, Vehicular Access to Rear & Pedestrian Access to Front, Driveway Parking for Two Cars, Private Enclosed Gardens, Quiet Residential Street, Within Walking Distance of Learning Campus, High St & Health Centre

Legal Notice

Our comprehensive database is populated by our meticulous research and analysis of public data. MirrorRealEstate strives for accuracy and we make every effort to verify the information. However, MirrorRealEstate is not liable for the use or misuse of the site's information. The information displayed on MirrorRealEstate.com is for reference only.

Real Estate Broker
Yopa, Scotland & The North
Brokerage
Yopa, Scotland & The North
Top Tags
Likes

0

Views

134

This website uses cookies to ensure you get the best experience. Learn more