Albion Hill, Ramsgate, Kent, CT11

GBP 1500 For Rent

Property Details

Property Type

1,367 sq ft

Description

Property Details: • Type: 1,367 sq ft • Tenure: N/A • Floor Area: N/A

Key Features: • Unique Commercial Premises • Harbour Views • New Business Opportunity • New Commercial Lease • Prime Location • Ground Floor & Basement • No Premium • Suit Various Uses (STPP) • Approx. 127m2 (1,367sqft) • Attractive Incentives Available

Location: • Nearest Station: Ramsgate Station • Distance to Station: 0.9 miles

Agent Information: • Address: 44 High Street, Broadstairs, CT10 1JT

Full Description: ATTRACTIVE INCENTIVES AVAILABLE FOR SUITABLE TENANTS - The property has recently undergone a major refurbishment and now the ideal opportunity has arisen for a brand new venture at this prime harbour facing venue in Ramsgate. The premises to be let are arranged over ground floor and basement levels and would in our opinion make an ideal coffee-shop, gallery or bar and maybe be suitable for alternative uses, subject to Landlord's consent and any necessary planning permission. The premises are to be offered with the benefit of a new full repairing and insuring commercial lease with terms to be agreed by negotiation.

For further details and to arrange your appointment to view call Terence Painter Estate Agents

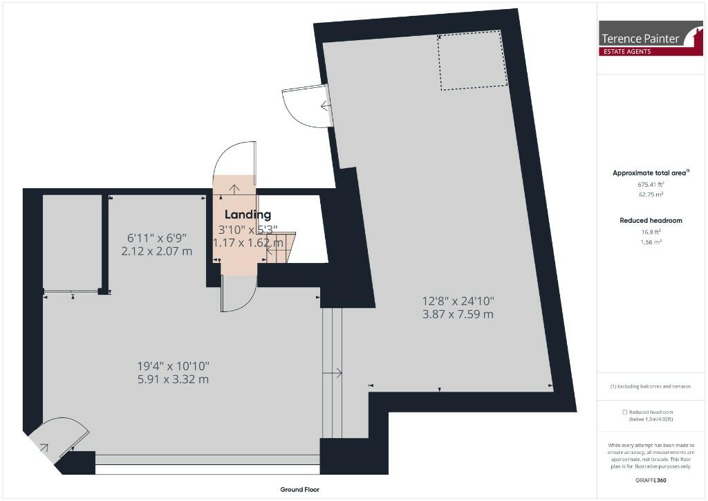
Entrance via corner door leading into ground floor level. Service Area 1: 5.680m x 5.460m (18' 8" x 17' 11") maximum. With feature fold back windows providing views across Ramsgate's Royal Harbour. Service cupboard. Two radiators. Door leading to landing and stairs to lower ground floor level. Three steps up to:

Service Area 2: 7.660m x 3710m (25' 2" x 12171' 11") With door leading out to rear service yard. Radiator.

Landing: 1.610m x 0.89m (5' 3" x 2' 11") Stairs leading down to lower ground floor level.

Lower Ground Floor Lobby: 2.380m x 1.710m (7' 10" x 5' 7") Door leading into main lower ground floor area. Radiator.

Lower ground Floor Area: 2.000m x 8.890m (39' 4" x 29' 2") maximum. Spacious open plan L-shaped area with concrete screed floor suitable for subdivision. Goods delivery hatch with access from pavement above.

W.C.s: 1.650m x 1.070m (5' 5" x 3' 6") Washroom with radiator and wash basin. Two separate w.c.s one with cupboard housing gas fired boiler.

Lease Terms & Rent: To be offered with the benefit of a new commercial lease with a starting rent of £18,000 per annum (year 2 £19,000 & year 3 £20,000) exclusive, no premium. Further terms by negotiation. The Landlords are prepared to offer incentives for suitable tenants, subject to negotiation. Ask the Agents for further details. We understand that VAT will be chargeable on the rent.

EPC: The premises have an Energy Performance Rating of 67- Band C.

Business Rates: The premises are due to be reassessed due to reconfiguration of the property.

Planning: Planning enquiries should be made to Thanet District Council planning department on or planning.Energy Performance CertificatesEPC 1

Location

Address

Albion Hill, Ramsgate, Kent, CT11

City

Thanet

Features and Finishes

Unique Commercial Premises, Harbour Views, New Business Opportunity, New Commercial Lease, Prime Location, Ground Floor & Basement, No Premium, Suit Various Uses (STPP), Approx. 127m2 (1,367sqft), Attractive Incentives Available

Legal Notice

Our comprehensive database is populated by our meticulous research and analysis of public data. MirrorRealEstate strives for accuracy and we make every effort to verify the information. However, MirrorRealEstate is not liable for the use or misuse of the site's information. The information displayed on MirrorRealEstate.com is for reference only.

Real Estate Broker
Terence Painter Estate Agents, Kent
Brokerage
Terence Painter Estate Agents, Kent
Top Tags
Harbour Views
Likes

0

Views

54

This website uses cookies to ensure you get the best experience. Learn more