Alipore Close, Lower Parkstone
Property Details
Land
Description
Property Details: • Type: Land • Tenure: FREEHOLD • Floor Area: N/A
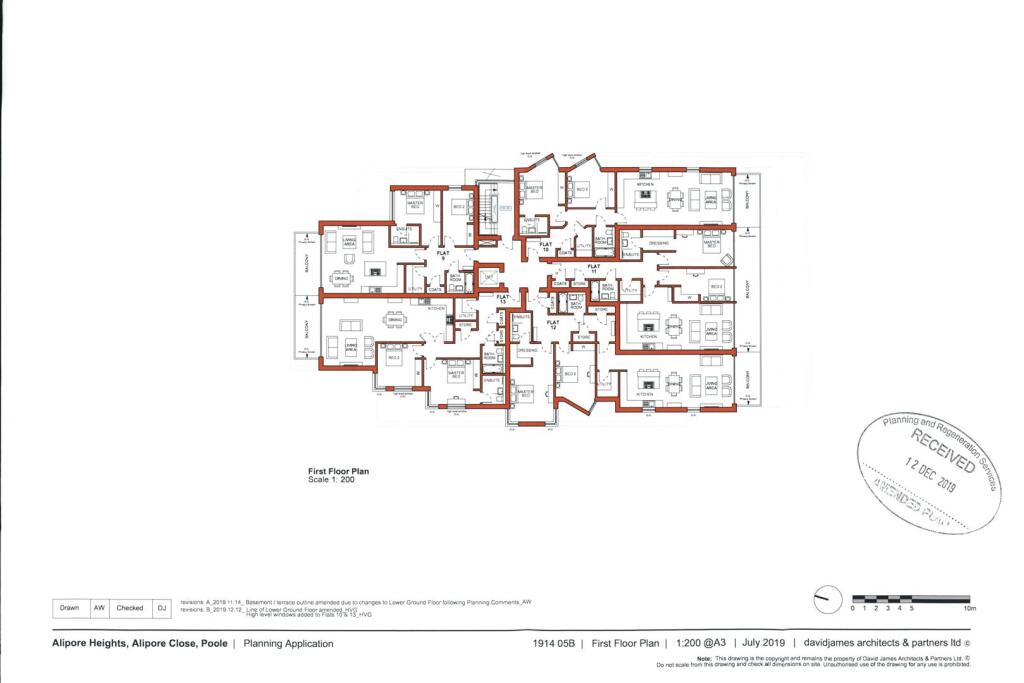
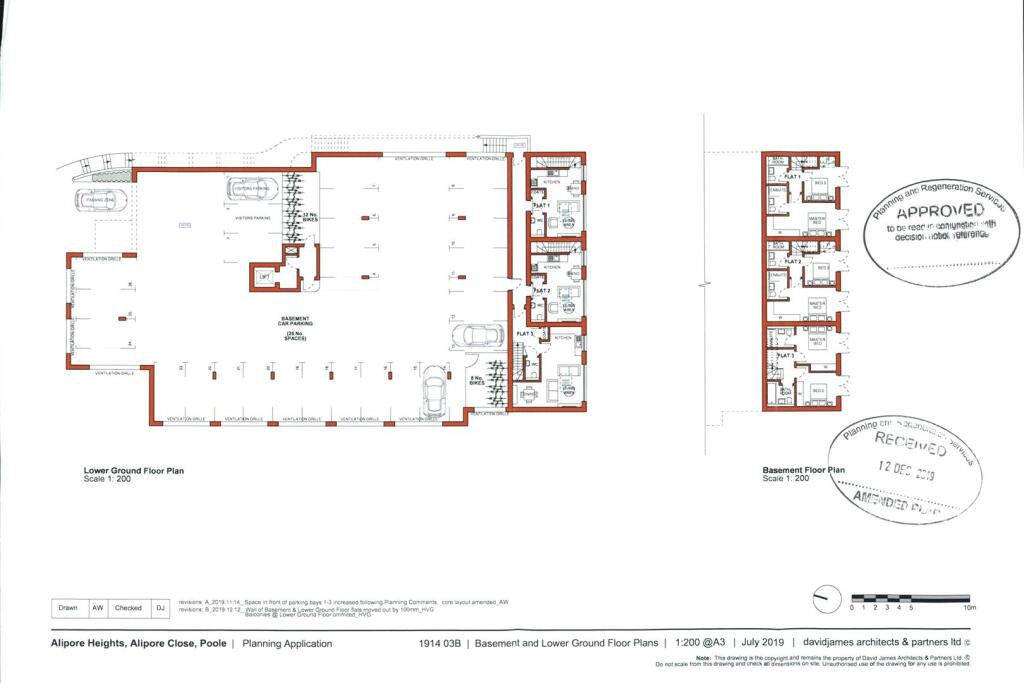
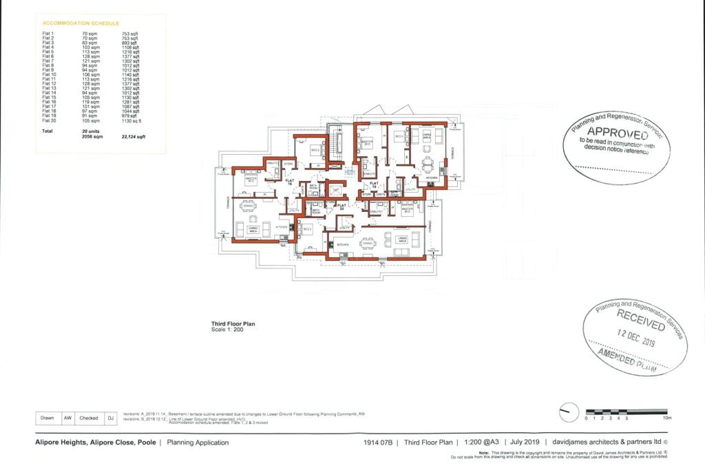
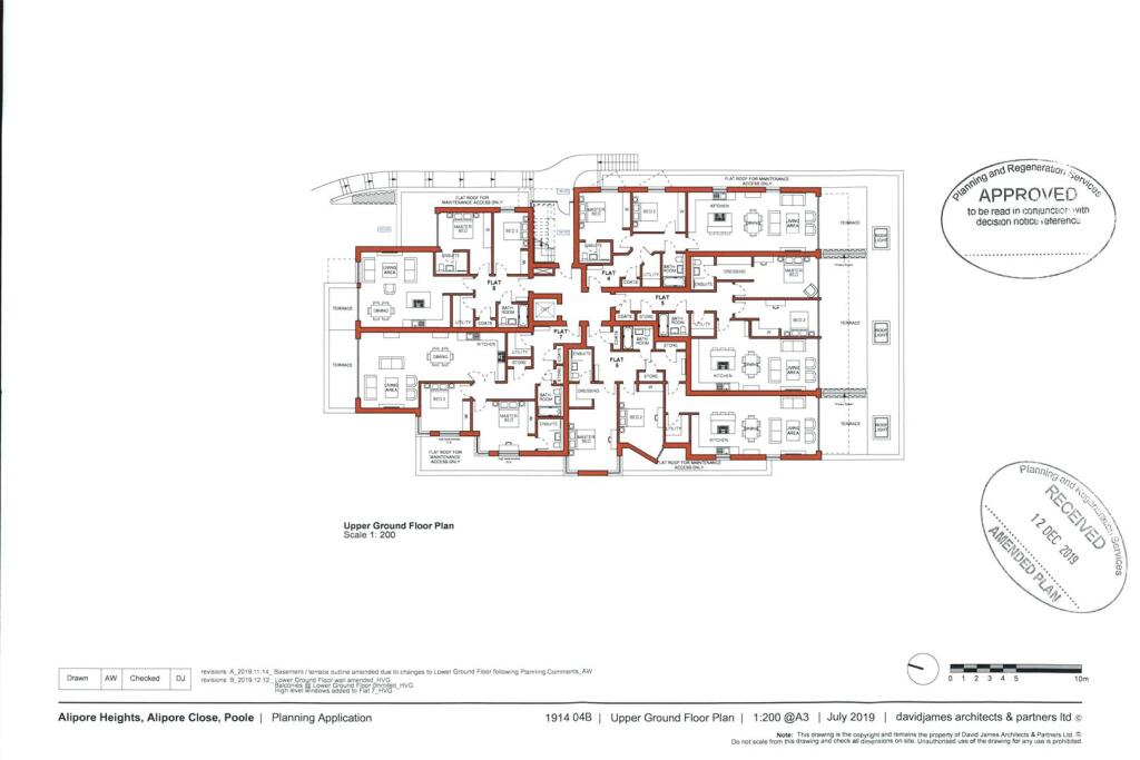
Key Features: • ** RARE DEVELOPMENT OPPORTUNITY ** • Planning Permission approved • Demolish existing building and construct 20 apartments • Two bedroom, two bathroom apartments with outdoor areas • Secure under ground parking with bike store • Apartments ranging from 753-1,377 square feet • Views available from majority of apartments • Located on quiet leafy cul-de-sac in BH14 • Approximately 0.6 acre plot • For more information please call our land department
Location: • Nearest Station: Parkstone Station • Distance to Station: 0.5617571072423173 miles
Agent Information: • Address: 28a Haven Road, Canford Cliffs, Poole, BH13 7LF
Full Description: ** FANTASTIC DEVELOPMENT OPPORTUNITY ** This rare DEVELOPMENT PLOT is located in LOWER PARKSTONE. Planning has been approved to demolish the existing building and construct 20 LUXURY NEW BUILD APARTMENTS with underground parking. CONTACT OUR LAND DEPARTMENT FOR MORE INFORMATION.<br /><br />Development opportunity with full planning permission to construct 20 luxury apartments located on a quiet cul-de-sac. Alipore Heights, Alipore Close, Lower Parkstone is conveniently located in between the Ashley Cross Village and Penn Hill shopping parade with a variety of restaurants, shopping facilities as well as national and local transport links are close by. The current owner has obtained planning permission (APP/19/01211/F) to demolish the existing building and construct 20 spacious two bedroom apartments with outdoor areas and underground parking. The majority of the apartments will benefit from fantastic views out towards Poole Harbour and beyond. This unique site is circa 0.6 acres and is rare in this location. This would be a fantastic development opportunity for a developer looking to build a statement block of apartments and the finished apartments would attract a lot of interest on the open market. Potential purchasers are invited to view from inside the existing building in order to fully appreciate the elevated position and distant views from this peaceful location. For all enquiries please call the office on . Luxury & Prestige are to be retained by any potential purchaser at 1%+VAT (1.2% inc. VAT) of the agreed price in the event of successfully completed transaction.<br /><br /><b>Please Check Out Our Video</b> - All of our properties feature a professionally produced short video, personally introduced by a member of our team.<br /><br />
Location
Address
Alipore Close, Lower Parkstone
City
Alipore Close
Features and Finishes
** RARE DEVELOPMENT OPPORTUNITY **, Planning Permission approved, Demolish existing building and construct 20 apartments, Two bedroom, two bathroom apartments with outdoor areas, Secure under ground parking with bike store, Apartments ranging from 753-1,377 square feet, Views available from majority of apartments, Located on quiet leafy cul-de-sac in BH14, Approximately 0.6 acre plot, For more information please call our land department
Legal Notice
Our comprehensive database is populated by our meticulous research and analysis of public data. MirrorRealEstate strives for accuracy and we make every effort to verify the information. However, MirrorRealEstate is not liable for the use or misuse of the site's information. The information displayed on MirrorRealEstate.com is for reference only.