Almancil (Loulé)
Property Details
5
None
Description
Green-Acres Property Listing - Portugal
Property Details: Plot with Project | Frontline Royal Golf Course | For Sale in Vale Real | Vale do Lobo | Algarve Rooms: 0 Bedrooms: 5 Living Area: 608 m² Price: 2,950,000 EUR
Agency: Liberty Real Estate
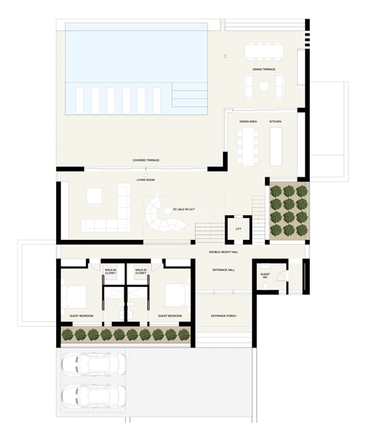
Description: An Exceptional Real Estate Opportunity at Vale do Lobo's Premier New Development Positioned alongside the 5th fairway of the legendary Royal Golf Course in Vale do Lobo, this outstanding west-facing and golf front plot within the exclusive Vale Real development represents one of the most interesting real estate opportunities currently available in the Algarve. Offered with a project, this 1,210m² plot comes complete with architectural plans for a stunning contemporary villa totalling 608m². Designed in a sophisticated modern style, the residence will feature five luxurious bedroom suites including an impressive primary suite with a dressing area and a private terrace with golf views, a private swimming pool, a rooftop terrace, sky garden and a spacious basement with an array of options for customisation, allowing the property to be tailor-made to your individual requirements. This inspired design seamlessly integrates refined living with the natural beauty of its surroundings. Vale Real has firmly established itself as one of the region's most sought-after addresses, with a growing collection of high-end villas either already completed or currently under construction. The development's future is equally compelling, with plans in place for an internationally branded hotel and spa, fine dining restaurants and boutique commercial stores adding significant long-term value and lifestyle appeal to this already prestigious location. For international buyers and investors alike, this represents a truly compelling proposition: the opportunity to acquire a prime plot in Vale do Lobo with a ready-to-build project, set within a destination that continues to attract global attention and acclaim.
Location
Address
Almancil (Loulé)
City
Almancil
Features and Finishes
Living area: 608 m²
Legal Notice
Our comprehensive database is populated by our meticulous research and analysis of public data. MirrorRealEstate strives for accuracy and we make every effort to verify the information. However, MirrorRealEstate is not liable for the use or misuse of the site's information. The information displayed on MirrorRealEstate.com is for reference only.