Amwell Road, Cambridge

GBP 475000 For Sale

Property Details

Property Type

Plot

Description

Property Details: • Type: Plot • Tenure: N/A • Floor Area: N/A

Key Features:

Location: • Nearest Station: Cambridge North • Distance to Station: 1.3 miles

Agent Information: • Address: 1 & 2 Clifton Road, Cambridge, CB1 7EA

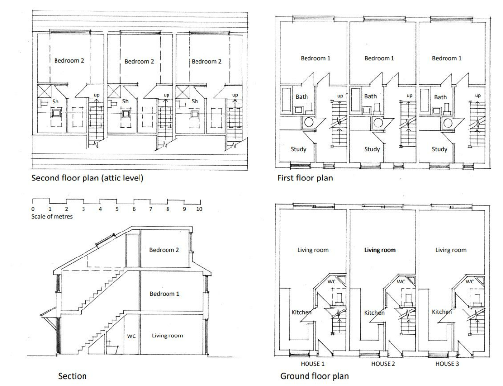
Full Description: A fantastic opportunity, full planning permission for the construction of three 2 bedroom dwellings in this popular residential location.The Site - Planning - 22/05472/FUL - Full planning permission for the demolition of existing bungalow and erection of 3no 2bed terrace dwellings.New Homes - For information on New Home values please contact Cheffins New Homes team or Cheffins Haverhill office who will both be able to assist.The planning approval permits 3no. 2 bedroom homes arranged over 3 floors.Material Information - Tenure - FreeholdCouncil Tax Band - Existing property is band DProperty Type - Existing property is traditional build Square Footage - Existing circa 78sqmSite area - 254sqmServices - Interested parties must satisfy themselves as to the availability and adequacy of all services prior to making their unconditional offer.Wayleaves, easements, covenants - The site is sold subject to all wayleaves, easements, covenants and rights of way, whether or not disclosed.Images shown are of the site and computer images of the proposed new build home.BrochuresAmwell Road, Cambridge

Location

Address

Amwell Road, Cambridge

City

Amwell Road

Legal Notice

Our comprehensive database is populated by our meticulous research and analysis of public data. MirrorRealEstate strives for accuracy and we make every effort to verify the information. However, MirrorRealEstate is not liable for the use or misuse of the site's information. The information displayed on MirrorRealEstate.com is for reference only.

Real Estate Broker
Cheffins Residential, Cambridge
Brokerage
Cheffins Residential, Cambridge
Top Tags
Site area 254sqm council tax band D
Likes

0

Views

27

This website uses cookies to ensure you get the best experience. Learn more