Arden Business Centre,, Alcester B49 6HW

GBP 1333 For Rent

Property Details

Property Type

2,171 sq ft

Description

Property Details: • Type: 2,171 sq ft • Tenure: N/A • Floor Area: N/A

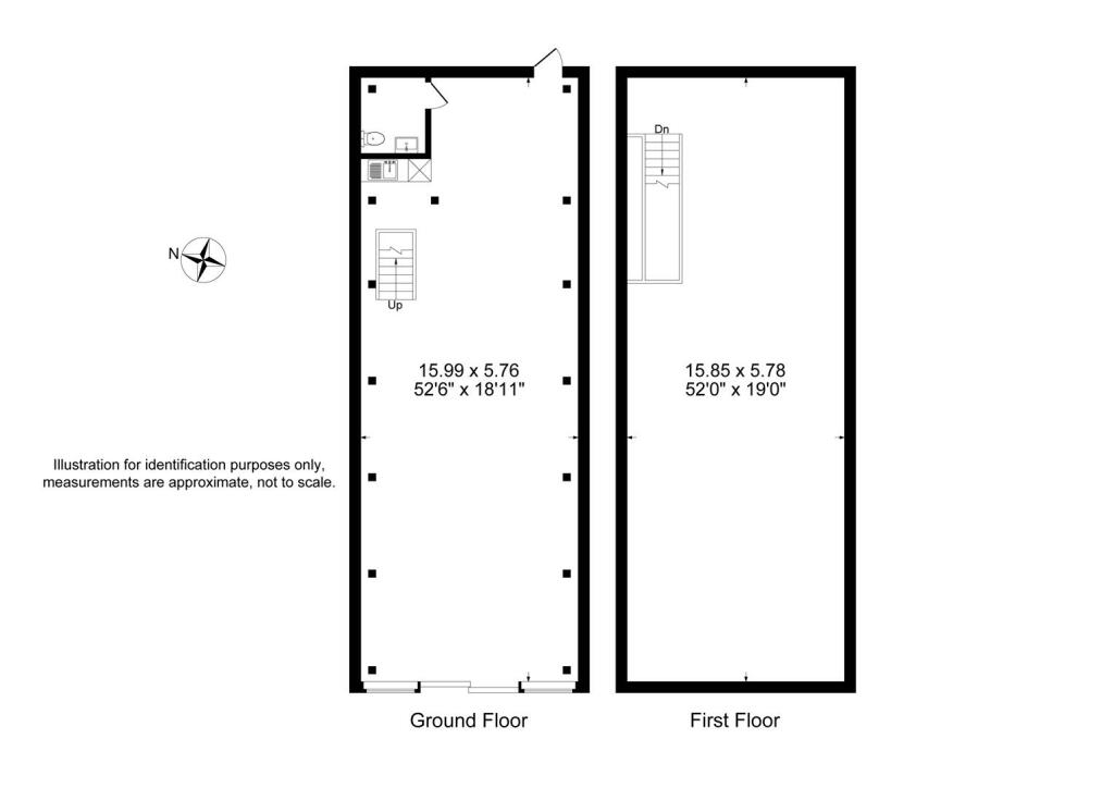
Key Features: • 2,171 sq ft (201.7 m2) • Next door to Screwfix and Tools & Fixings • Useful FF Mezzanine • Air Conditioning • LED Lighting • Glass Shop Front Doors • Further Roller Shutter Door • GF Toilet & Kitchen • Ideal Trade Counter or Warehouse with Offices • £16,000 pa net of VAT

Location: • Nearest Station: Wooton Wawen Station • Distance to Station: 4.5 miles

Agent Information: • Address: 1st Floor Offices 3 Trinity Street Stratford upon Avon WARKS CV37 6BL

Full Description: TO LET - A 2,171 sq ft (201.7 m2) versatile unit located between Screwfix Direct and Tool & Fixings in Alcester with a full size mezzanine floor giving extra first floor office or storage space. £16,000 per annum + VAT.The property is accessed via a set of opening glass doors at ground floor level which have the benefit of the roller shutter that closes down covering these for security at night. As you enter the ground floor there is one open plan room which has a toilet in the far left hand corner and a kitchenette area. The floor to ceiling height under the mezzanine floor is 3.15 m and the roller shutter with is 4.00 m wide. There is a staircase to the first floor mezzanine which the current owners use partly for offices and partly storage/production area. This area has a timber chipboard floor and has height rising from 2.62 m to 3.36 m at its maximum. The unit is heated and cooled by air conditioning units and the lights are LED's being very efficient on electric consumption.

Location

Address

Arden Business Centre,, Alcester B49 6HW

Features and Finishes

2,171 sq ft (201.7 m2), Next door to Screwfix and Tools & Fixings, Useful FF Mezzanine, Air Conditioning, LED Lighting, Glass Shop Front Doors, Further Roller Shutter Door, GF Toilet & Kitchen, Ideal Trade Counter or Warehouse with Offices, £16,000 pa net of VAT

Legal Notice

Our comprehensive database is populated by our meticulous research and analysis of public data. MirrorRealEstate strives for accuracy and we make every effort to verify the information. However, MirrorRealEstate is not liable for the use or misuse of the site's information. The information displayed on MirrorRealEstate.com is for reference only.

Real Estate Broker
Westbridge Commercial Limited, Stratford Upon Avon
Brokerage
Westbridge Commercial Limited, Stratford Upon Avon
Top Tags
Useful FF Mezzanine Air Conditioning
Likes

0

Views

58

This website uses cookies to ensure you get the best experience. Learn more