Ardoe, Aberdeen, AB12
Property Details
5
3
Detached
Description
Property Details: • Type: Detached • Tenure: N/A • Floor Area: N/A
Key Features: • Oil Central Heating • Double Garage and driveway with ample off street parking • Large Garden grounds with sheds and summer house - grass cutting included
Location: • Nearest Station: Portlethen Station • Distance to Station: 3.5309246273075776 miles
Agent Information: • Address: The Quadrant, Poynernook Road, Aberdeen, AB11 5QX
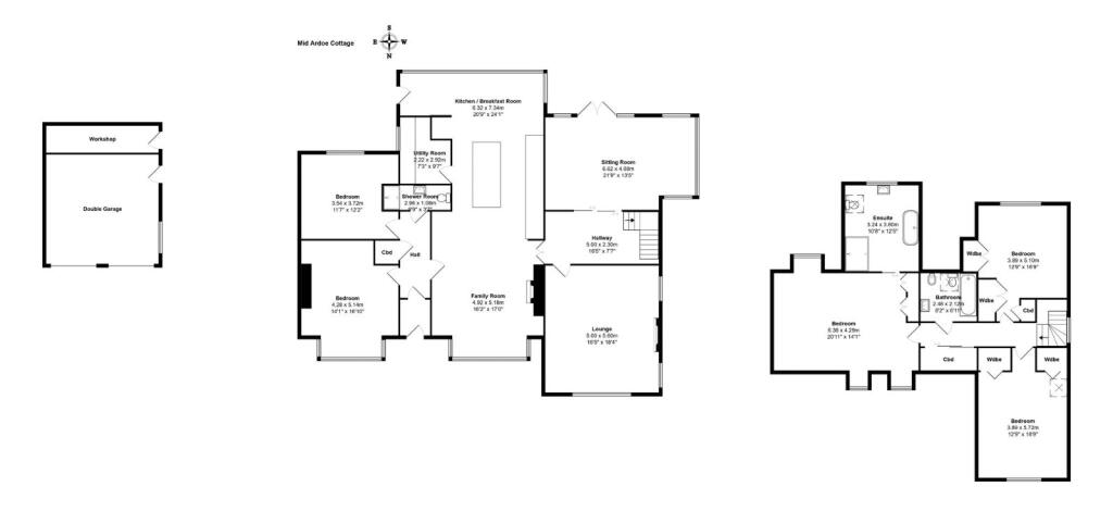
Full Description: Sitting on elevated site with spectacular views across the river to Cults, this property has been extended and upgraded to a high standard by the present owner and offers spacious family accommodation. Viewing highly recommended to appreciate the individual character of this property. <br /><br />The property is located in Ardoe by Banchory-Devenick, a lovely residential suburb which lies to the south west of Aberdeen providing the residents with the advantages of rural life but the conveniences of the city on the doorstep. Some five minutes drive from Aberdeen's Bridge of Dee, the area enjoys fantastic scenery, woodland walks and a first-rate primary school. Easy access is afforded to the those commuting to Aberdeen City and suburbs. A very peaceful location, it is just 1 minute from the Paul Lawrie golf centre, cafe and driving range; and Ardoe House hotel.<br /><br />Accommodation: <br /><br />Downstairs: VESTIBULE; HALL; large open plan KITCHEN, DINING and FAMILY AREA; Kitchen with range of ‘Chalon’ units and ‘Cornufe’ cooker, spacious dining area with heated limestone tiles, oak floored family section with wood burning stove; separate UTILITY ROOM with sink, washing machine, tumble dryer and central heating boiler; GUEST BEDROOM/DOUBLE BEDROOM 4; STUDY/DOUBLE BEDROOM 5; SHOWER ROOM; large LOUNGE with fireplace; LIVING/SUN ROOM looking over rear garden with patio doors leading to cobbled terrace.<br /><br />Upstairs: MASTER BEDROOM with ENSUITE BATHROOM benefitting from a freestanding bath, walk in shower, in travertine with underfloor heating; WALK IN CLOSET; FAMILY BATHROOM; 2 DOUBLE BEDROOMS with fitted wardrobes.<br /><br />Outside: Covered veranda with decking; extensive garden ground (owner maintained) laid to grass and flowering shrubs; large double garage, remote operated, with power and light; 2 woodshed; summer house; driveway with gate and parking for several cars.<br /><br />Pets considered. <br /><br /><br /> The property is located in Ardoe by Banchory-Devenick, a lovely residential suburb which lies to the south west of Aberdeen providing the residents with the advantages of rural life but the conveniences of the city on the doorstep. Some five minutes drive from Aberdeen's Bridge of Dee, the area enjoys fantastic scenery, woodland walks and a first-rate primary school. Easy access is afforded to the those commuting to Aberdeen City and suburbs. A very peaceful location, it is just 1 minute from the Paul Lawrie golf centre, cafe and driving range; and Ardoe House hotel.<br /><br />Detached Villa<br /><br />Deposit : £2,400<br /><br />Landlord Registration: 55635/110/02000<br /><br />EPC Rating: C<br /><br />Council Tax: F<br /><br />Additional costs: council tax and water charge, utilities. Garden Waste Bin from local authority at additional cost (if applicable) <br /><br />Utilities: TBC<br /><br />Ultrafast*as obtained from Further information regarding broadband and phone signal can be obtained from the Ofcom broadband and mobile coverage checker - Broadband and mobile coverage checker - Ofcom<br /><br />Scottish Letting Agent Registration Number: LARN1812026<br /><br />All statements contained herein are believed to be correct but are not guaranteed and interested parties must satisfy themselves as to their accuracy.<br /><br />
Location
Address
Ardoe, Aberdeen, AB12
City
Aberdeen
Features and Finishes
Oil Central Heating, Double Garage and driveway with ample off street parking, Large Garden grounds with sheds and summer house - grass cutting included
Legal Notice
Our comprehensive database is populated by our meticulous research and analysis of public data. MirrorRealEstate strives for accuracy and we make every effort to verify the information. However, MirrorRealEstate is not liable for the use or misuse of the site's information. The information displayed on MirrorRealEstate.com is for reference only.