Arthur Road, Erdington, Birmingham
Property Details
5
3
Semi-Detached
Description
Property Details: • Type: Semi-Detached • Tenure: Freehold • Floor Area: N/A
Key Features: • Semi-detached house • 5 Bedrooms • 2 Reception Rooms • Cellar • Conservatory • En-suite • Gas Central Heating • Off road parking • Chain Free • Available now for viewings
Location: • Nearest Station: N/A • Distance to Station: N/A
Agent Information: • Address: 1 Reservoir Road, Erdington, Birmingham, B23 6DA
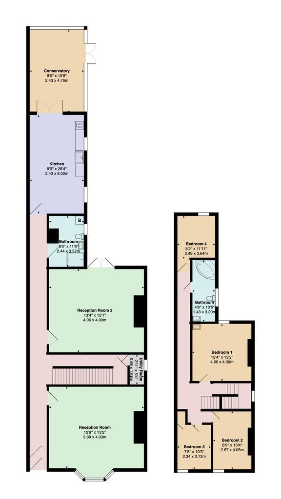
Full Description: Henley Charles are pleased to offer for sale this 5 Bedroom 3 storey semi-detached house situated 5 miles from Birmingham City centre and 1 mile from Chester road train station. The property in brief comprises of:5 BedroomsThird floor bedroom with en-suiteTwo Reception RoomsKitchenConservatoryDownstairs Shower Room Upstairs BathroomRear GardenGas Central heatingOff road parkingBuyers fee of 2% of the purchase price *terms & conditions applyContact office for further detailsCall for viewings & further informationAddress: Arthur Road, Erdington, B24 9EU RECEPTION ROOM 1 12' 9" x 13' 2" (3.89m x 4.03m) UTILITY ROOM 2' 10" x 5' 4" (0.88m x 1.63m) CELLAR 15' 10" x 12' 0" (4.83m x 3.67m) RECEPTION ROOM 2 13' 3" x 13' 1" (4.06m x 4.00m) BATHROOM 8' 0" x 11' 8" (2.44m x 3.57m) KITCHEN 7' 11" x 26' 3" (2.43m x 8.02m) CONSERVATORY 7' 11" x 15' 7" (2.43m x 4.76m) BEDROOM 1 13' 3" x 13' 1" (4.06m x 4.00m) BEDROOM 2 8' 9" x 13' 3" (2.67m x 4.05m) BEDROOM 3 7' 8" x 10' 2" (2.34m x 3.12m) BATHROOM 4' 8" x 10' 5" (1.43m x 3.20m) BEDROOM 4 8' 2" x 11' 11" (2.49m x 3.64m) BEDROOM 5 10' 3" x 20' 6" (3.13m x 6.25m) BEDROOM 5 ENSUITE 6' 0" x 7' 3" (1.85m x 2.21m) With approximate measurements these particulars have been prepared in good faith by the selling agent in conjunction with the vendor(s) with the intention of providing a fair and accurate guide to the property.However, they do not constitute or form part of an offer or contract nor may they be regarded as representations, all interested parties must themselves verify their accuracy. No tests or checks have been carried out in respect of heating, plumbing, electric installations or any type of appliances which may be included.
Location
Address
Arthur Road, Erdington, Birmingham
City
Birmingham
Features and Finishes
Semi-detached house, 5 Bedrooms, 2 Reception Rooms, Cellar, Conservatory, En-suite, Gas Central Heating, Off road parking, Chain Free, Available now for viewings
Legal Notice
Our comprehensive database is populated by our meticulous research and analysis of public data. MirrorRealEstate strives for accuracy and we make every effort to verify the information. However, MirrorRealEstate is not liable for the use or misuse of the site's information. The information displayed on MirrorRealEstate.com is for reference only.