Back York Street, Clitheroe, BB7 1LT

GBP 200000 For Sale

Property Details

Property Type

Land

Description

Property Details: • Type: Land • Tenure: N/A • Floor Area: N/A

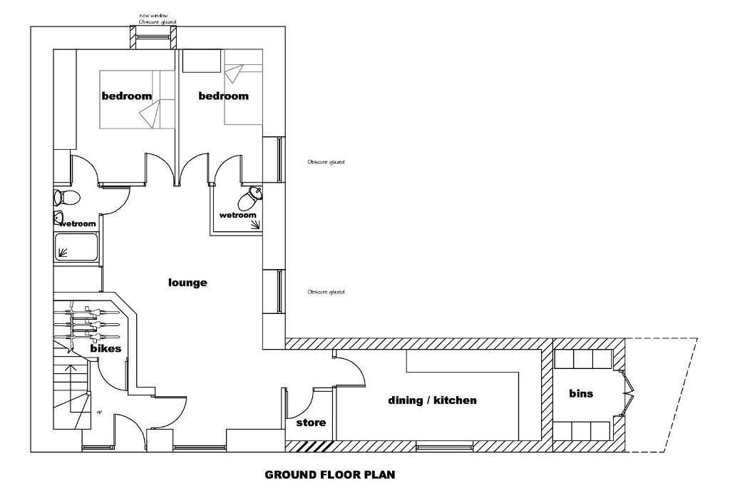
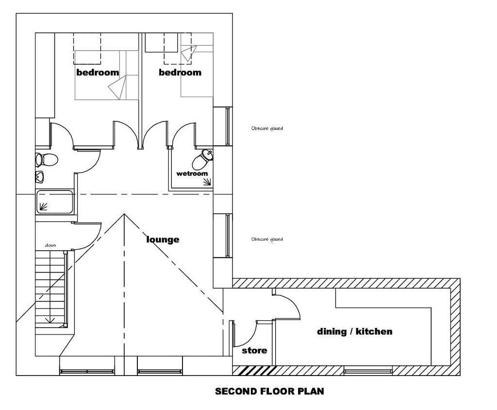
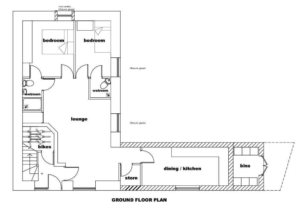
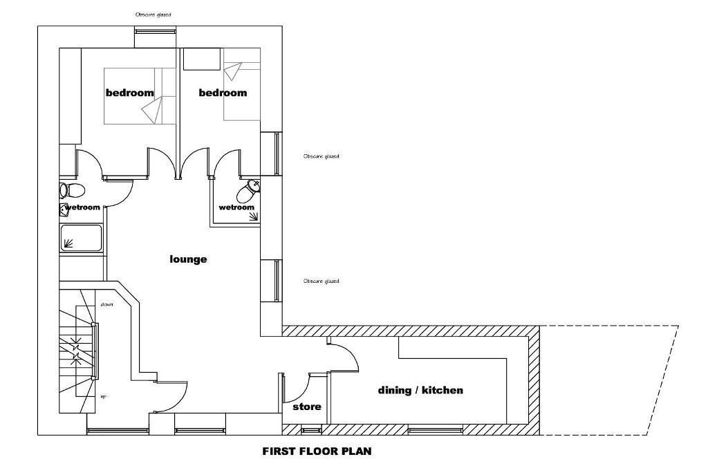
Key Features: • Exciting development project • Convenient town centre location • Lounge & dining kitchen • Cloakroom & shower rooms • Scheme to convert to 3, 2-bed apartments • Planning permission granted • Ideal investment opportunity • 60.5-65.0m2 (650-700sqft)approx.per unit

Location: • Nearest Station: Clitheroe Station • Distance to Station: 0.2 miles

Agent Information: • Address: 1 Castlegate, Clitheroe, BB7 1AZ

Full Description: The former Printworks is a three-storey building with planning permission for three separate residential apartments. The property is situated in a fantastic location in the centre of Clitheroe. This is an exciting opportunity for a developer to create a stunning residential complex of three, two-bedroom apartments with lounge, dining kitchen, cloakroom and shower rooms. The planning permission was granted in October 2024 and all the plans and information can be found on the Ribble Valley Council planning portal using the application number 3/2023/0488 or using the following link: From our sales office in Clitheroe travel down Castle Street onto York Street. Pass the library then turn first right onto Back York Street and the building can be found on the left-hand side.BrochuresBrochure 1

Location

Address

Back York Street, Clitheroe, BB7 1LT

City

Clitheroe

Features and Finishes

Exciting development project, Convenient town centre location, Lounge & dining kitchen, Cloakroom & shower rooms, Scheme to convert to 3, 2-bed apartments, Planning permission granted, Ideal investment opportunity, 60.5-65.0m2 (650-700sqft)approx.per unit

Legal Notice

Our comprehensive database is populated by our meticulous research and analysis of public data. MirrorRealEstate strives for accuracy and we make every effort to verify the information. However, MirrorRealEstate is not liable for the use or misuse of the site's information. The information displayed on MirrorRealEstate.com is for reference only.

Real Estate Broker
Honeywell, Clitheroe
Brokerage
Honeywell, Clitheroe
Top Tags
2-bed apartments
Likes

0

Views

77

This website uses cookies to ensure you get the best experience. Learn more