Balcaskie Close, Edgbaston, Birmingham, B15

GBP 399950 For Sale

Property Details

Bedrooms

3

Bathrooms

1

Property Type

End of Terrace

Description

Property Details: • Type: End of Terrace • Tenure: Freehold • Floor Area: N/A

Key Features: • No Upward Chain • Previous Planning Approval • Three Bedrooms • Garage En-bloc • Excellent Location • Private Garden

Location: • Nearest Station: N/A • Distance to Station: N/A

Agent Information: • Address: 185-187 High Street Harborne Birmingham B17 9QG

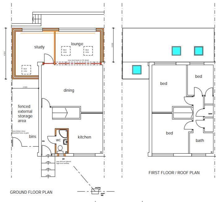
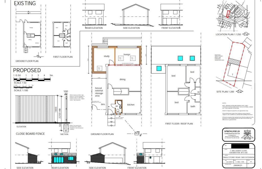
Full Description: Hadleigh Estate Agents are delighted to offer this fantastic three bedroom end terraced property for sale, offering excellent potential to extend. The property is offered with no upward chain and most recently benefitted from having planning permission approved for a rear and side single storey extension. This property further benefits from being one of the largest plots amongst similar properties within the area. The property briefly comprises; fore garden leading into a spacious kitchen diner, to the rear of the property is a large living room. Upstairs boasts two double bedrooms and a spacious single bedroom along with modern family bathroom. To the rear is a private garden, allowing for side access. The current owner previously had planning permission approved for a rear extension and side extension, utilising the total footprint of the property. The extensions could allow the opportunity for a large open plan living area, or an additional downstairs bedroom.We have been advised the following information, however we advise for you to confirm this with your legal representative as Hadleigh Estate Agents cannot be held accountable. Tenure - FreeholdEPC - DCouncil Tax Band - DLocation - Balcaskie Close is set within a quiet and residential cul-de-sac located within the prestigious Calthorpe Estate and close to nearby Chad Square offering excellent links to Birmingham City Centre. Prime Edgbaston location offering local restaurants, shops and the ever popular Edgbaston Village. Harborne High Street is also a short walk away with a plethora of amenities. Local facilities include Harborne Leisure Centre, Edgbaston Priory, Queen Elizabeth Hospital and University of Birmingham.Kitchen Diner - Fitted kitchen with a range of base and wall units, plumbing for washing machine, hob and extractor hood. Double glazed windows to the front elevation, central heating radiator and two ceiling light points.Lounge - Spacious lounge offering rear door leading to garden. Large windows to rear elevation, central heating radiator, ceiling light points and wall light.Master Bedroom - Large double bedroom benefitting from fitted wardrobes, window to rear elevation, ceiling light point and central heating radiator.Bedroom Two - Large double bedroom benefitting from fitted wardrobes, window to front elevation, ceiling light point and central heating radiator.Bedroom Three - Large single bedroom benefitting from internal storage cupboard, window to rear elevation, ceiling light point and central heating radiator.Bathroom - Modern bathroom suite, with shower over bath, low level flush WC, hand wash basin and bidet. Tiled walls and flooring, ceiling light point and central heating radiator.Garden - Private garden, predominantly laid to lawn. Paved patio area and fenced boundary.Potential Rear/ Side Extension - Benefitting from being an end terrace, the property most recently had planning approval for a rear and partial side extension.General Information - We have been advised the following information. Please note you will have to confirm this with your legal representative. Tenure: FreeholdCouncil Tax Band: DCalthorpe Communal Charge: £998 per annum approx.BrochuresBalcaskie Close, Edgbaston, Birmingham, B15

Location

Address

Balcaskie Close, Edgbaston, Birmingham, B15

City

Birmingham

Features and Finishes

No Upward Chain, Previous Planning Approval, Three Bedrooms, Garage En-bloc, Excellent Location, Private Garden

Legal Notice

Our comprehensive database is populated by our meticulous research and analysis of public data. MirrorRealEstate strives for accuracy and we make every effort to verify the information. However, MirrorRealEstate is not liable for the use or misuse of the site's information. The information displayed on MirrorRealEstate.com is for reference only.

Real Estate Broker
Hadleigh, Harborne
Brokerage
Hadleigh, Harborne
Top Tags
Three Bedrooms Excellent Location Private Garden End of Terrace
Likes

0

Views

4

This website uses cookies to ensure you get the best experience. Learn more