Banbury Road, Stratford-upon-Avon
Property Details
3
3
Detached
Description
Property Details: • Type: Detached • Tenure: N/A • Floor Area: N/A
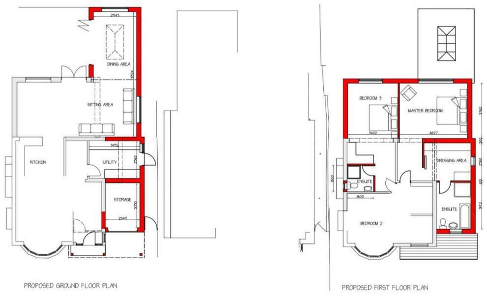
Key Features: • Reception Hall & WC • Sitting Room • Impressive Family Dining Kitchen • Utility/Boot Room • Three Double Bedrooms • Family Bathroom & Two En-suite • Mature Landscaped Garden • Garage & Ample Parking • Planning to Extend • Video Tour Online
Location: • Nearest Station: N/A • Distance to Station: N/A
Agent Information: • Address: 10 Union Street, Stratford-Upon-Avon, CV37 6QT
Full Description: A thoughtfully extended traditional detached home, in a prime edge of town location. GIA 1399 sqft•Reception Hall & WC•Sitting Room•Impressive Family Dining Kitchen•Utility / Boot Room•Three Double Bedrooms•Family Bathroom & Two En-suite•Mature Landscaped Garden•Garage & Ample Parking •Planning to Extend•Video Tour OnlineThe Location - Located just south of the river, along the prestigious and highly sought after Banbury Road. This traditional bay fronted detached home, has been thoughtfully extended, to offer a wealth of accommodation over three floors. Being presented well throughout, and boasting a generous landscaped garden to rear, the property offers the perfect turnkey home. For those who may need additional space in years to come, there is planning to further extend to the ground and first floors (further details available on request).Being set back from the road beyond a generous frontage and tarmac drive providing ample parking, you access the property into as reception hall. Stairs rise to the upper floor with storage under, wood flooring continues throughout, and panel doors lead off to a guest WC and utility/boot room. The sitting has a bay window to front and feature inset log burner serving as a cosy focal point.The heart of this home is the impressive open plan family dining kitchen. Zoned inro three areas, this sociable space provides the perfect place to host guests whilst preparing meals. The kitchen is well equipped with a comprehensive range of storage, complimented by contrasting granite surfaced over, a range of integrated appliances including two ovens, five ring gas hob, extractor, fridge, freezer, wine cooler and dishwasher. A breakfast bar provides space for occasional dining and wood floors continue to a relaxed seating area and dining space, filled with natural light through and expanse of glazing to rear and two velux roof lights.To the first floor, a central landing leads to a modern family bathroom and two double bedrooms, both have fitted wardrobes, and one has a modern en-suite shower room.There is a third double bedroom to the second floor, with feature vaulted ceiling, fitted storage and a second modern en-suite shower room.Externally, the property sits well within its mature plot, enjoying a due southwest orientation. Laid mainly to lawn with well stocked boarders, there is also a generous paved sunken terrace providing a great space to entertain in the summer months. A substantial garden room affords multi uses, including work from home space and is fitted with power and heating, for 365 day use. There is a detached single garage, garden shed and gated access to the front.The Location - Stratford-upon-Avon is internationally famous as the birthplace of William Shakespeare and home to the Royal Shakespeare Theatre. It attracts almost four million visitors a year who come to see its rich variety of historic buildings. Stratford is also a prosperous riverside market town which provides South Warwickshire with a wide range of national and local stores, fine restaurants, a good choice of public and private schools and excellent sporting and recreational amenities. These include golf courses, swimming pool and leisure centre, race course, the nearby north Cotswold Hills as well as the River Avon for anglers and boating enthusiasts.The town is well served by trunk road/motorway and rail communications with regular train services to Birmingham Moor Street and London Marylebone (via Warwick Parkway/Leamington Spa stations), whilst junction 15 of the M40 motorway is situated within about 15 minutes drive. Birmingham International Airport, the National Exhibition and Agricultural Centres and International Convention Centre are all located in under one hour's travel whilst other well known business centres including Warwick & Leamington Spa, Coventry, Evesham, Redditch and Solihull are all readily accessible.General Information - Subjective comments in these details imply the opinion of the selling Agent at the time these details were prepared. Naturally, the opinions of purchasers may differ. Agents Note: We have not tested any of the electrical, central heating or sanitaryware appliances. Purchasers should make their own investigations as to the workings of the relevant items. Floor plans are for identification purposes only and not to scale. All room measurements and mileages quoted in these sales particulars are approximate. Fixtures and Fittings: All those items mentioned in these particulars by way of fixtures and fittings are deemed to be included in the sale price. Others, if any, are excluded. However, we would always advise that this is confirmed by the purchaser at the point of offer. Tenure: The property is Freehold with vacant possession upon completion of the purchase. Services: All mains services are understood to be connected to the property.Local Authority: Stratford-upon-Avon District Council Band F. In line with The Money Laundering Regulations 2007 we are duty bound to carry out due diligence on all of our clients to confirm their identity. Rather than traditional methods in which you would have to produce multiple utility bills and a photographic ID we use an electronic verification system. This system allows us to verify you from basic details using electronic data, however it is not a credit check of any kind so will have no effect on you or your credit history. You understand that we will undertake a search with Experian for the purposes of verifying your identity. To do so Experian may check the details you supply against any particulars on any database (public or otherwise) to which they have access. They may also use your details in the future to assist other companies for verification purposes. A record of the search will be retained. To complete our quality service, VaughanReynolds is pleased to offer the following:- Free Valuation: Please contact the office on to make an appointment. VaughanReynolds Conveyancing: Very competitive fixed price rates agreed with our panel of local experienced and respected Solicitors. Please contact this office for further details.Mortgages: We can offer you free advice and guidance on the best and most cost-effective way to fund your purchase with the peace of mind that you are being supported by professional industry experts throughout your journey. A & S Financial Services offer a comprehensive mortgage service, giving excellent advice 7 days a week. Please call Andy Davis on or mobile or by e-mail .Vaughan Reynolds - VaughanReynolds, for themselves and for the vendors of the property whose agents they are, give notice that these particulars do not constitute any part of a contract or offer, and are produced in good faith and set out as a general guide only. The vendor does not make or give, and neither VaughanReynolds nor any person in his employment, has an authority to make or give any representation or warranty whatsoever in relation to this property.Brochures12 Banbury Road.pdfBrochure
Location
Address
Banbury Road, Stratford-upon-Avon
City
Stratford-on-Avon
Features and Finishes
Reception Hall & WC, Sitting Room, Impressive Family Dining Kitchen, Utility/Boot Room, Three Double Bedrooms, Family Bathroom & Two En-suite, Mature Landscaped Garden, Garage & Ample Parking, Planning to Extend, Video Tour Online
Legal Notice
Our comprehensive database is populated by our meticulous research and analysis of public data. MirrorRealEstate strives for accuracy and we make every effort to verify the information. However, MirrorRealEstate is not liable for the use or misuse of the site's information. The information displayed on MirrorRealEstate.com is for reference only.