Belgrave Road, Clifton, Bristol, BS8
Property Details
2
Apartment
Description
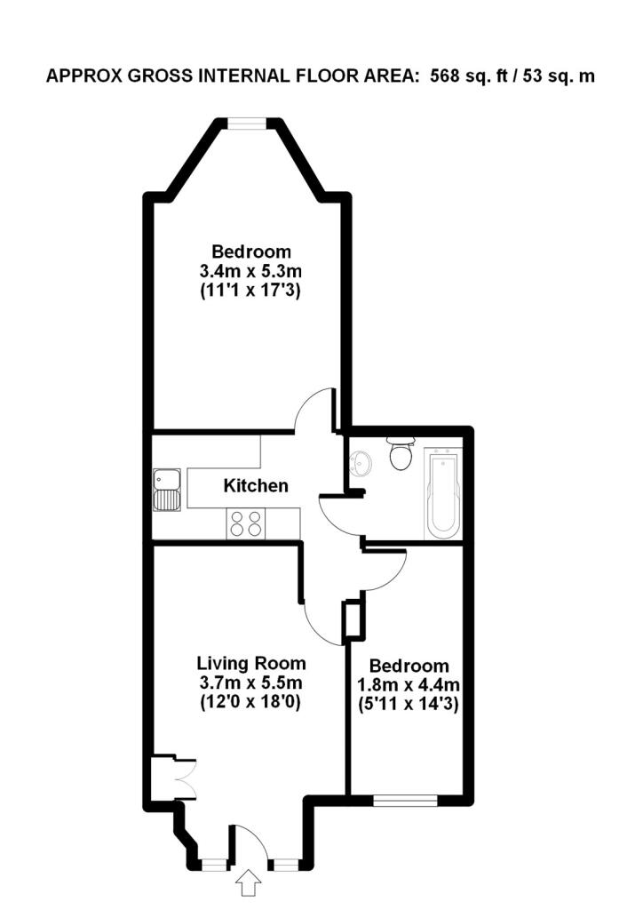
Property Details: • Type: Apartment • Tenure: N/A • Floor Area: N/A
Key Features:
Location: • Nearest Station: N/A • Distance to Station: N/A
Agent Information: • Address: 1 Triangle South, Clifton, Bristol, BS8 1EY
Full Description: PROFESSIONALS ONLY- A lovely, two double bedroom, unfurnished professional apartment within a 5 minute walk of Whiteladies Road's shops, bars and restaurants. The property comprises of one large double bedroom and a second smaller double bedroom. There is a lounge/open plan kitchen with applicances, a shower rooms and gas central heating. Rent £1250pcm/£625pppm/£144pppw excluding bills. Tenancy 07.03.2025-06.03.2026.EPC Rating C78.Council Tax Band BREF LF,17BEL PROFESSIONALS ONLY- A lovely, two double bedroom, unfurnished professional apartment within a 5 minute walk of Whiteladies Road's shops, bars and restaurants. The property comprises of one large double bedroom and a second smaller double bedroom. There is a lounge/open plan kitchen with applicances, a shower rooms and gas central heating. Rent £1250pcm/£625pppm/£144pppw excluding bills. Tenancy 07.03.2025-06.03.2026.EPC Rating C78.Council Tax Band BEF LF,17BEL
Location
Address
Belgrave Road, Clifton, Bristol, BS8
City
Bristol
Features and Finishes
None
Legal Notice
Our comprehensive database is populated by our meticulous research and analysis of public data. MirrorRealEstate strives for accuracy and we make every effort to verify the information. However, MirrorRealEstate is not liable for the use or misuse of the site's information. The information displayed on MirrorRealEstate.com is for reference only.