Benett Drive, HOVE

GBP 3595 For Rent

Property Details

Bedrooms

4

Bathrooms

2

Property Type

Detached

Description

Property Details: • Type: Detached • Tenure: N/A • Floor Area: N/A

Key Features:

Location: • Nearest Station: N/A • Distance to Station: N/A

Agent Information: • Address: 32a Bath Street, BN1 3TB

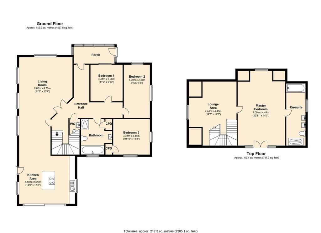
Full Description: Mishon Welton Letts are pleased to present this lovely 4 bedroom unfurnished detached family property. The spacious porch leads you through to the entrance hall and into the large open plan bright living room then kitchen. The fully equipped and contemporary kitchen has been designed to a very high standard with family use in mind offering a large range of units, a breakfast bar and bi folding doors opening out to the rear lawned garden. Three good sized double bedrooms are also located on the ground floor as well as a great modern family bathroom with double ended bath, separate shower and wc. There is also a separate wc. The upper floor presents a great 'living area' perfect for a study or dressing area or just a relaxing space. The large Master bedroom is beautifully presented with french doors opening onto a Juliette balcony and a en suite with double ended bath, walk in shower and wc. There are many additional features such as a paved driveway and a garage to name but a few. Available now. Please note these are not all recent pictures as we have not had the chance to photograph.Council Band FBrochuresBenett Drive, HOVE

Location

Address

Benett Drive, HOVE

City

Brighton and Hove

Legal Notice

Our comprehensive database is populated by our meticulous research and analysis of public data. MirrorRealEstate strives for accuracy and we make every effort to verify the information. However, MirrorRealEstate is not liable for the use or misuse of the site's information. The information displayed on MirrorRealEstate.com is for reference only.

Real Estate Broker
Mishon Welton Letts, Brighton
Brokerage
Mishon Welton Letts, Brighton
Top Tags
Likes

0

Views

20

This website uses cookies to ensure you get the best experience. Learn more